– Habitaciones adaptables –

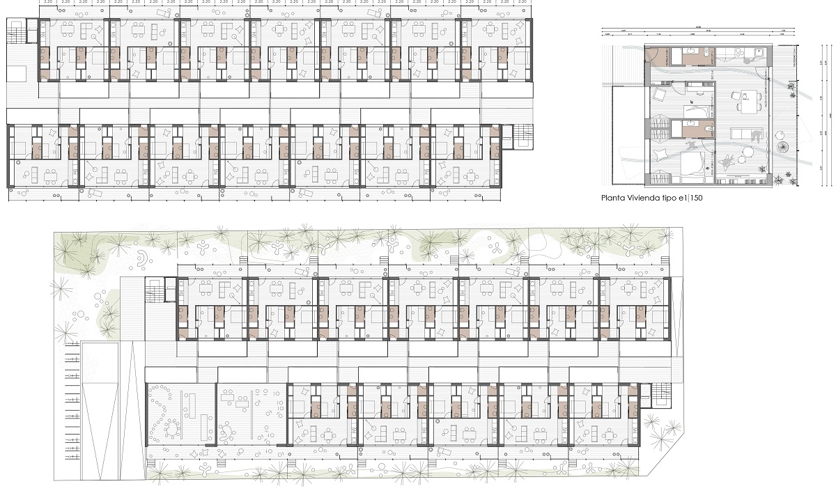
Se plantea un bloque de orientación este – oeste a fin de aprovechar de manera eficiente el soleamiento y las corrientes de aire naturales, obteniendo calefacción natural en invierno y refrigeración en verano. El edificio se eleva del terreno casi 1 metro, lo que permite crear un semisótano para el aparcamiento sin apenas coste.
El objetivo es obtener una edificación con criterios » passivhaus» o BREAM y calificación A. Construida con materiales de proximidad y criterios modulares: Estructura mixta de madera laminada tipo «lignatur» en el cuerpo edificado y acero y hormigón en las galerías, cubierta verde visitable y cerramientos con acabados de aislamiento tipo «sate».
Otro aspecto importante que se ha tenido en cuenta en el diseño es su versatilidad, permitiendo por ello un uso muy abierto de los espacios. Con ello se consigue programas de ocupación de pareja con hijo/as, pareja y espacios de trabajo, compañeros y espacios de trabajo… la versatilidad, apoyado en lo adaptabilidad son un pilar fundamental de la sostenibilidad en el tiempo.
Las instalaciones propuestas permiten alcanzar; en conjunto; con las estrategias pasivas del edificio la máxima calificación energética (A) en emisiones de Kg de CO2 Y kWh/m2 año, incorporando además criterios de diseño medioambientales y de sostenibilidad.
El edificio cuenta con una central de producción en cubierta, formada por dos generadores aerotérmicos aire-agua con un potencial total de entorno a 100kW térmicos de calefacción y refrigeración,con control de caudal y temperatura de acuerdo al nuevo RITE 2021.
El sistema contará con un depósito de acumulación y equilibrado de caudales primario – secundario, disminuyendo el número de arrancadas de equipos de producción. El depósito cuenta con un juego de válvulas formado por dos válvulas de tres vías diversoras selectoras entre modo verano y modo invierno, que permiten mejorar el funcionamiento de inercia prevista.
El sistema de producción de ACS se ha previsto con sistemas de aerotermia de doble ciclo de refrigerante y con capacidad de producir agua a alta temperatura. Se ha previsto un consumo diario de acuerdo a DB HE-4 de 1.928 l/ día. Se ha previsto un sistema de retorno en los trazados generales, estando cualquier punto de consumo a menos de 15 m de la conducción principal de impulsión.
El sistema tendrá una distribución hidráulica con dos tubos con funcionamiento de caudal variable y presión diferencial constante, permitiendo adoptar la distribución del fluido caloportador.
Instalación de producción fotovoltaica. Se ha previsto una instalación fotovoltaica con 27,6 kW pico para una producción anual estimada de 42.044 kWh,calculados con el software de cálculo PVGIS de la Comisión Europea. Esta producción permite un planteamiento de consumo CERO.
La instalación consta de XX paneles fotovoltaicos monocristalinos de 460 Wp de dimensiones
aproximadas 2,10 X 1,05 m por panel y con un inversor de alta eficiencia con al menos 3 MPPTs
y 30 kW.
La ventilación de las viviendas se realizará con equipos mecánicos independientes por vivienda, de doble flujo con recuperador de calor ubicados en el interior del falso techo del baño principal o secundario, registrarle para la limpieza de filtros y mantenimiento. El caudal de ventilación se ajustará a lo exigido por el CTE DB HS3, la eficiencia de recuperación de calor será en todo caso superior al 80% en su punto de trabajo.
| Denominación: | Concurso de proyectos, con intervención de jurado, para edificio de viviendas para jóvenes en régimen de legal protección |
| Lugar: | Ávila |
| Fechas: | 2023 |
| Categoría: | Concurso, viviendas residenciales |
| Superficie: | 2.835,80 m² |
| Presupuesto: | 2.480.544,00 € |
| Propiedad: | SOMACYL |
| Autores: | Alberto Grijalba y Julio Grijalba |
| Colaboradores: | Manuel Fernández Catalina (arquitecto). Mario Rodolfo Fernández Blanco (Estudiante).Javier Ferrín (arquitecto técnico). VEGA Ingeniería. |







