– Dos bloques y una esquina –

El solar donde se propone la intervención se encuentra ubicado en una zona consolidada del ensanche producido en la ciudad con la aparición del ferrocarril, precisamente al «otro lado», de los dos que desde ese momento delimitaba la vía. Se trata de un barrio constituido a partir de finales del siglo XIX, con una lotificación de huertas y ocupación de éstas por pequeñas viviendas unifamiliares con fachada a calle y una parcela posterior con huerto para uso de cada vivienda. Ese modelo suburbano, ha sufrido una radical transformación desde el desarrollo económico de Valladolid en los años sesenta, imponiéndose un modelo de renovación a partir de manzanas cerradas, con edificios de vivienda colectiva entre medianeras.
El sistema tipológico de viviendas entre medianeras, con doble crujía a calle y a patio, aparece como un estereotipo perfectamente normativizado; no obstante, el proyecto pretende asumir en este caso, tanto la singular situación de esquina de que se dispone, como la necesidad de una intervención «volumétrica» que permita paliar la falta de «caracterización» y «cualificación urbana» que el entorno tiene en la actualidad.
Varios aspectos han influido en la idea generadora de esta propuesta:
- El de ubicar el proyecto en un entorno arquitectónico y urbano heterogéneo y escasamente caracterizado.
- El de contar con un solar en esquina, sin edificaciones enfrente (sólo las tapias del Colegio del Carmen).
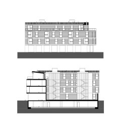
- El hecho de contar con un edificio en «ele», que sin embargo mantiene dos anchos muy desproporcionados de crujía, siendo de ocho metros sobre la calle Julio Ruiz de Alda y de dieciocho a la calle Villanueva.
- La idea de intervención volumétrica, más que «formal», para lo que se propone una solución en dos bloques. Uno de ellos, con fachada a la calle Villanueva, se compone de baja, dos plantas y ático, y contiene un programa de viviendas más convencional, con dos bloques de comunicación vertical y dos viviendas por planta cada uno. El otro, con fachada a la calle de Julio Ruiz de Alda, contiene un programa de vivienda más singular, considerando además en este caso la estrechez de la crujía propuesta por la normativa urbanística.
- La conexión entre los dos bloque se hace a través de la creación de un corredor de distribución, vinculado a uno de los núcleos de conexión vertical, y que genera la distribución a las unidades habitables del bloque de la calle Julio Ruiz de Alda. De este modo, se consigue además un único portal, que abriéndose a la calle Julio Ruiz de Alda, conecta entre sí los dos núcleos de comunicación vertical a través de un corredor en planta baja.
- El tratamiento de los núcleos de comunicación que aparecen exentos en el patio, como dos cajas acristaladas que actúan en forma de linternas para los largos pasillos de acceso a las viviendas del bloque de crujía grande.
- Los tipos de viviendas que se proponen, se fundamentan en tipologías suficientemente experimentadas por la modernidad, y tratan de atender, en cuanto a superficie y distribución, las necesidades de demanda habituales de este tipo de zona urbana residencial.
| Denominación: | PROYECTO de edificio de 15 viviendas en Calle Villanueva |
| Lugar: | Valladolid |
| Fechas: | 1998 – 2002 |
| Categoría: | Viviendas |
| Superficie: | 2.000 m² |
| Presupuesto: | 151.593.000 pts |
| Propiedad: | PROGOT Valladolid |
| Autores: | Julio Grijalba y Eduardo Carazo |
| Colaboradores: | Mariano Torio (Arq. Técnico) Carlos Ruiz |
| Fotografías: | Rafaella Bompiani |
Reconocimientos:
- 1 ER ACCÉSIT. V PREMIO DE ARQUITECTURA GALAN CARVAJAL. Colegio de Arquitectos de Galicia, Castilla y León, Asturias y Cantabria. 2001,
- FINALISTA. IV Premio de Arquitectura de Castilla y León, COACYLE y COAL. 2003.











