– Transparencia entre patios –

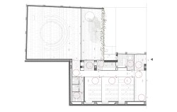
El local comercial se desarrolla en una única planta baja, que se trasformará en un lugar de culto religioso evangélico. Esto supone una premisa que condiciona la creación de un lugar de recogimiento y conexión personal.
El acceso al «templo» se efectúa a través de la fachada en la Calle Unión, donde se opta por la utilización de materiales austeros, que permiten anticipar la intención de la comunidad, a la cual pertenece.
El programa comienza con una puerta de acceso con cancela, que da paso a un vestíbulo que contiene la sala de espera y desde el cual, mediante la trasparencia de los vidrios de las aulas, se observan todas de las aulas .
Posteriormente accede un pasillo de distribución flanqueado a sus laterales por las aulas y aseos a su izquierda y las estancias de despacho, cocina y acceso al patio que posee la parcela. En la parte izquierda más alejada nos encontramos la sala principal destinada a culto religioso.
| Denominación: | IGLESIA EVANGÉLICA CAMINO DE VIDA |
| Lugar: | Calle Unión, 5, Valladolid |
| Fechas: | 2021 |
| Categoría: | Edificio público |
| Superficie: | 332,00 m² |
| Presupuesto: | 170.000,00 € |
| Propiedad: | Comunidad Cristiana Evangélica del Camino de Vida |
| Autores: | Alberto Grijalba y Julio Grijalba |
| Colaboradores: | Ana Gomez, Manuel Fernández Catalina (arquitectos), INASO ( estructuras), Javier Ferrín Pérez (Arquitecto técnico) |











