| estudio de arquitectura Julio y Alberto Grijalba | Oficina con sede en Valladolid y proyección internacional especializada en los campos de arquitectura dotacional y residencial combinados junto a la docencia e investigación universitaria
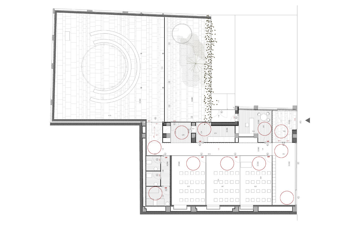
2021_IGLESIA EVANGÉLICA DELCAMINO DE VIDA _Planta reformada