– un muro de mármol y tres muebles –

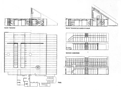
El presente encargo surge como consecuencia del concurso de anteproyectos convocado en noviembre de 1986 por la junta del gobierno del Colegio Oficial de Arquitectos de Valladolid, cuyo fallo nos otorgó el primer premio. Las exigencias iniciales establecían un programa orientativo de necesidades que en un primer momento invitaban a un planteamiento compartimentado, pero que casi inmediatamente 1e rechazamos, para inclinamos después hacia un concepto más radical de planta libre.
Así, nuestra propuesta se recrea en la evocación de un espacio abierto o isótropo, casi minimalista, donde la elección afortunada de un pequeño número de elementos y su disposición en el plano resolvieron el Proyecto: unos elementos que deben ser entendidos con una cierta capacidad de ser montados
o desmontados, casi con carácter muelble. El muro de mármol ,con un estricto criterio funcional, subdivide el (espacio en lo privado y lo público. Los contenedores de tablero de DM son las piezas de almacén, un espacio múltiple en sí mismo, jerarquizado y direccional En todo momento hemos querido encontrar el deseado equilibrio entre lo constructivo y lo compositivo donde los materiales son lo que parecen y la nobleza es la primera de sus cualidades
| Denominación: | CONCURSO y PROYECTO de Sede del Colegio Oficial de Arquitectos. |
| Lugar: | Valladolid |
| Fechas: | 1987 |
| Categoría: | oncurso, proyecto, interiorismo, edificio público |
| Propiedad: | Colegio Oficial de Arquitectos de Valladolid |
| Autores: | Julio Grijalba, Alberto Alonso ,José Antonio Isidro, Gabriel Gallegos, José Mª Varona ,Carlos Descalzo, Mariano Olcese |
| Fotografías: | Ricardo González |
Reconocimientos:
- 1 PREMIO CONCURSO SEDE DEL COLEGIO OFICIAL DE ARQUITECTOS DE VALLADOLID











