– Recuperar y reutilizar. Densidades variables –

El Teatro Lope de Vega de Valladolid, fue proyectado en 1861, por Jerónimo de la Gándara. Siguiendo los patrones imperantes en el momento.
Nuestro proyecto se posiciona en un entorno ideológico de intervención respetuosa con los elementos y partes heredadas, en especial la caja correspondiente a la gran sala, que incluye patio de butacas y palcos, así como las fachadas a María de Molina y 20 de febrero. En estos elementos se plantea una acción próxima a la anastilósis.
Recuperar en definitiva estos ámbitos de proyecto que tienen un valor materia, artístico e histórico. Así el proyecto asuma la condición de palimpsesto, donde el tiempo y su reconociendo a través de los distintos estados y superposiciones se convierte en la tarea rectora a seguir.
Por otra parte, la estructura mixta compuesta de hierro fundido y vigas y entramados de madera, se plantea para ser restaurada tal y como aparece en los paneles gráficos del proyecto. La estructura de madera que cubre con cerchas la gran sala, también se propone su restauro dado su buen estado de conservación.
Desde un punto de vista material el proyecto persigue transmitir un principio de acción mínima y auto-restricción material, a la búsqueda de una lectura unitaria de un proyecto que en realizad parte de una condición fragmentaria. Por ello se propone aceptar el silencio como aspiración fundamental: pocos materiales de naturaleza austera, de fácil mantenimiento y que ayuden a dotar de unidad a un proyecto que acoge lo diverso.
“El lujo está en el espacio y la esencialización”
El edificio del teatro Lope de Vega de Valladolid, fue concebido como un clásico “Teatro a la italiana”, configuración está la más común en múltiples manifestaciones artísticas y escénicas.
Por ello este proyecto de restauración y rehabilitación contempla en primer lugar esta disposición, aunque reacondicionada para una capacidad de 350 butacas en el nuevo teatro central del teatro. Para ello se contempla también la restauración “ad origen” de manera anastilósica de la totalidad de palcos y galerías, a fin de perder su carácter primigenio del siglo XIX.
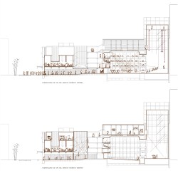
A fin de posibilitar la máxima versatilidad en este tipo de configuración, se dota al conjunto de un nuevo acceso de carga y descarga, nueva caja escénica, nuevos hombros técnicos, y una completa dotación de nuevos camerinos, así como de un nuevo foso.
La nueva gran sala polivalente tiene un alto carácter transformable debido a un suelo móvil y al hecho de poder almacenar las butacas del patio bajo el suelo técnico. La renovada caja escénica responde a los más altos condicionantes exigidos en la actualidad. Con un nuevo peine situada a 22 metros desde la cota del escenario. En la caja escénico se organizan dos “hombros” de dobles escaleras y galerías técnicas. Por otra parte, se ha proyectado un nuevo acceso de carga y descarga que conecta directamente con el escenario desde la calle 20 de febrero.
Visibilidad de las diferentes configuraciones del espacio escénico.
A La italiana:
Las visuales en este tipo de disposición corresponden con las de los grandes teatros del siglo XIX europeos, del que el teatro Lope de Vega forma parte. Tal como puede comprobarse en los esquemas realizados. Si bien algunas localidades de palcos tienen una visibilidad algo
reducida, esta no puede mejorarse sin modificar el carácter del teatro y su naturaleza.
Configuración versátil:
La configuración más versátil es aquella que elimina la totalidad de las butacas del patio y se desarrolla en un suelo hidráulico plano. Esta organización del espacio permite una visualización total desde todos los puntos del teatro. Es una disposición flexible móvil y por tanto capaz de albergar localidades con una visual óptima de carácter transformable.
Configuración central:
La tercera de las tipologías posibles en la organización del espacio escénico está directamente emparentada con la del punto anterior. Difiere tan solo en el hecho de desplegar una grada retráctil desde el escenario y permite también utilizar un porcentaje de butacas en el patio, como ya se ha visto. Se deduce la eficiencia de esta configuración desde un punto de vista de la visibilidad, permitiendo una visual optima sobre el centro de la sala también desde los palcos de
carácter histórico.
Museo del teatro espacio apto para la musealización.
En la planta cuarta, bajo la cubierta de madera que resuelve la estructura de la gran sala, se plantea un espacio musealizado, de contenido ahora indefinido, pero que bien podía ser el museo del propio teatro. Un museo con contenido histórico del inmueble, no olvidemos que es el más antiguo de la ciudad. También podía contener una exposición permanente que a lo largo de la historia se han realizado en él, así como permitir pequeñas exposiciones temporales. Con ello se pretende completar una oferta altamente atractiva en un conjunto como gran contenedor cultural orientado a la ciudad, pero también proyectado nacional e internacionalmente.
| Denominación: | Redacción del proyecto básico y de ejecución, dirección facultativa y dirección de ejecución de las obras de consolidación estructural y rehabilitación del teatro Lope de Vega de Valladolid |
| Lugar: | Valladolid |
| Fechas: | 2022 |
| Categoría: | concurso, restauración |
| Superficie: | 4.707 m² (teatro original) |
| Presupuesto: | 7.700.719 € |
| Convocante: | Ayuntamiento de Valladolid |
| Autores: | Alberto Grijalba Bengoetxea, Julio Grijalba Bengoetxea, Eduardo González Fraile |
| Colaboradores: | Rafael Díez Vega (Vega ingeniería), Borja Román Capelastegui (Vega ingeniería), Marta López Antuñano (Vega ingeniería), Manuel Fernández Catalina (arquitecto), Raquel Hurtado García (arquitecta), María Jiménez Hernández (estudiante), Ezzahra Marzoug Talla (estudiante), Miguel Ruiz Domínguez (estudiante) |























