– Viviendas en blanco y negro –

El proyecto trata de asumir la singular situación que se dispone, con la necesidad de una intervención que dote de carácter y cualificación urbana al entorno.
En la idea generadora de la propuesta han intervenido diversos factores:
A.- La ubicación del proyecto en un entorno arquitectónico y urbano en proceso de creación, con la circunstancia de formar parte de un conjunto residencial que constituye un límite con la Ronda Norte, y con barrios residenciales de ensanche de la ciudad ya consolidados (Huerta del Rey y Parquesol)
B.- La ordenación de un grupo de parcelas con la ide a de unificación frente a la constitución alineada de nuevas calles.
C.- La idea de que una propuesta compensada en su volumetría, cuyo tratamiento de las superficies, permite además entender mejor la intervención dentro del conjunto residencial que ha de constituirse para formar ciudad.
D.- La capacidad de los materiales constructivos para conseguir expresividad, y la utilización de mecanismos compositivos con el mismo fin.
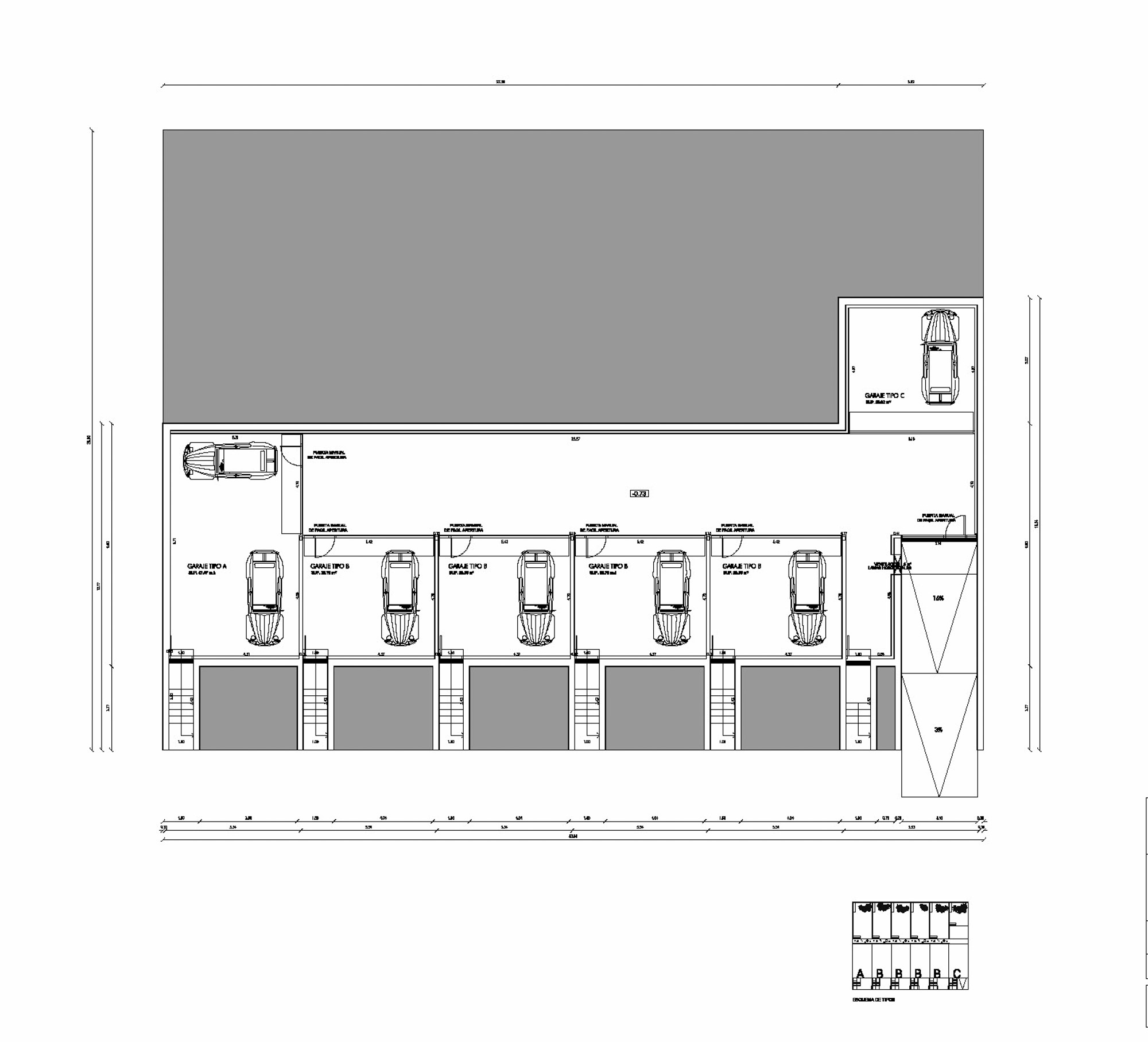
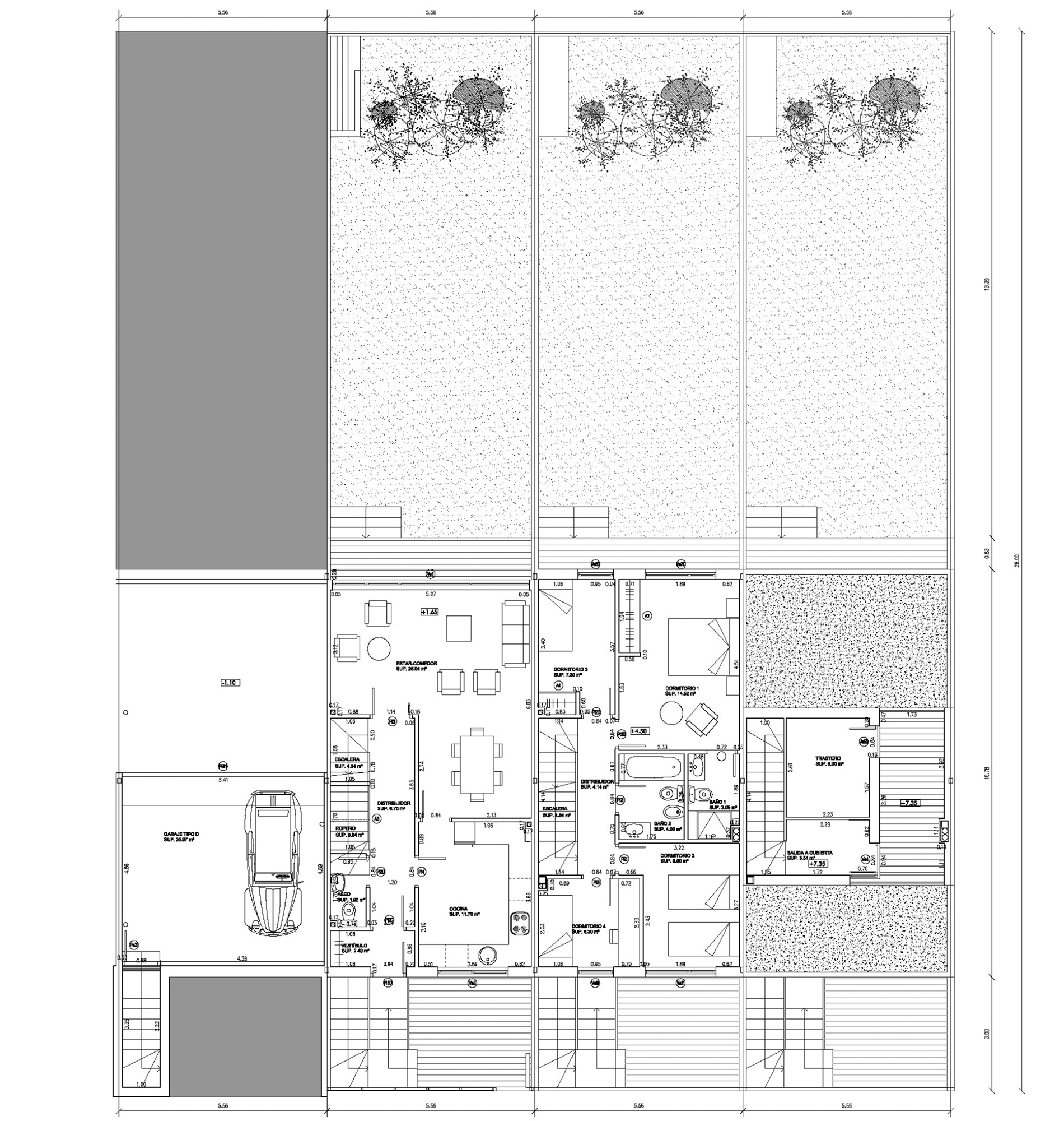
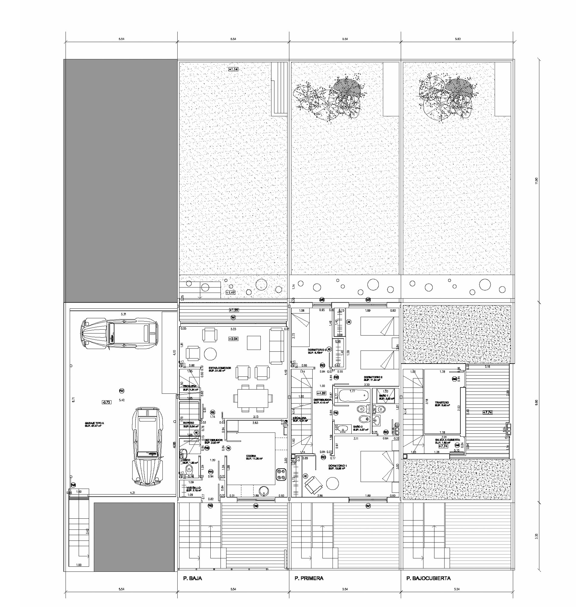
E.- Los tipos de viviendas que se proponen, se fundamentan en tipologías suficientemente experimentadas por la modernidad, y tratan de atender, en cuanto a superficie y distribución, las necesidades de demanda habituales de este tipo de zona urbana residencial. Se resuelven a partir de una solución en una única crujía. En planta baja se encuentra la zona de estar hacia los patios individuales que se orientan hacia el interior de la parcela. En el frente hacia el acceso se sitúa un vestíbulo con la escalera y la cocina. La planta primera contiene uno o dos dormitorios hacia la calle, un paquete de dos servicios en una banda intermedia y dos habitaciones hacia el patio. En el bajocubierta queda un espacio diáfano y el sótano está ocupado por un garaje comunitario, independiente en cada una de las parcelas. Cada vivienda tiene acceso independiente al garaje.
| Denominación: | Proyecto de 22 viviendas adosadas y garajes |
| Lugar: | Campo de tiro, Valladolid |
| Fechas: | 2006 |
| Categoría: | Proyecto, vivienda |
| Superficie: | 4.112,51 m² |
| Presupuesto: | 2.071.879,14 € |
| Propiedad: | Larcovi S.A.L |
| Autores: | Odimasp / Julio Grijalba, Alberto Grijalba |
| Colaboradores: | Sara Delgado (arquitecto). Alberto Rivas, (estudiante de arquitectura). Adamas (instalaciones). Javier Ferrín (Arquitecto Técnico) |



















