– Dos Bloques entre un patio –

El solar donde se propone la intervención se encuentra ubicado en una zona de periferia urbana, de reciente consolidación, que cuenta con una gran arteria de tráfico en las proximidades, actuando como «borde» urbano. Es un área en radical transformación mediante actuaciones de iniciativa pública y uso residencial.
El sistema tipológico de viviendas es de bloques aislados y alineados con los bordes de parcelas, que en el caso de nuestro proyecto, tiene forma de L. La propuesta establece dos edificios con fachada a calle y a un gran patio abierto de manzana, con lo que afronta la singular situación de esquina y la necesidad de una intervención volumétrica que cualifique el entorno.
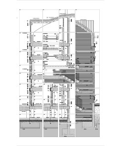
La caracterización de los edificios se ha basado en la organización de los elementos y la elección de los materiales con un criterio de claridad y economía. De este modo, se han configurado las fachadas. En ellas, cada planta se separa de la anterior por pasos de forjados marcados que dejan entre si bandas de ladrillo donde se ubican huecos verticales rasgados. Esos huecos están organizados en dos tipos repetidos y modulados, que aportan economía y sencillez a las fachadas, a la vez que permiten una disposición libre en el plano del muro. Unos huecos más estrechos responden a los dormitorios, y otros más anchos a los salones.
Sobre bandas superpuestas de huecos alternos que ocupan toda la altura de las viviendas. Los muros exteriores son de ladrillo en un color tostado oscuro que contrasta con las carpinterías de aluminio en su color y el revestimiento de las cubiertas curvas.
Las viviendas que se proponen, se fundamentan en tipologías suficientemente experimentadas por la modernidad, y tratan de atender, en cuanto a superficie y distribución, las necesidades habituales de este tipo de zona urbana residencial. Se resuelven a partir de una solución en doble crujía, con la zona de día (estar y cocina) hacia el exterior de la parcela, y la de noche (dormitorios) hacia el patio ajardinado. En la banda central se disponen servicios y pasillos, a modo de banda húmeda, ventilados e iluminados alternativamente por pequeños patios interiores, que permiten a su vez evitar el problema de los tendederos a fachada. Los exteriores de ambos bloques, que albergan las zonas de día, cuentan con orientación este-oeste.
| Denominación: | CONCURSO y PROYECTO de 66 Viviendas VPO. en Campo de Tiro, parcela 4.1 |
| Lugar: | Valladolid |
| Fechas: | 2000-3 |
| Categoría: | Concurso, viviendas |
| Superficie: | 4.048 m² |
| Presupuesto: | 3.100.998,88 € |
| Propiedad: | VIVA Ayuntamiento de Valladolid |
| Autores: | Odimasp | Alberto Grijalba y Julio Grijalba |
| Colaboradores: | Joaquín Martínez Matute, Antonio Álvaro Stefan Fleischhauer y José Luis Fajardo (Estudiantes de Arquitectura). Adamas (Instalaciones). Alberto Grijalba (Arq. Técnico), Carlos Ruiz |
| Fotografías: | Luis Asín y Raffaela Bompiani |
Reconocimientos:
- 1ER PREMIO. CONCURSO 66 Viviendas VPO. en Campo de Tiro, parcela 4.1


















