– Dos bloques entre un patio y un boomerang de colores. –

En la idea generadora de la propuesta interviene el compromiso con un sistema de asentamiento en que las nociones de cohesión e integración urbana se reducen a los difusos esquemas que sirven sobre todo para la gestión administrativa del planeamiento actual. Dicho compromiso se centra en la sensibilización hacia el valor de un entorno sin caracterizar, heterogéneo, pero con un destino claro que es el de servir de límite entre una de las rondas de la ciudad y un grupo de barrios consolidados.
Los bloques de viviendas que forman el proyecto se ordenan forzosamente sobre solares exentos, con condiciones de edificabilidad aprovechadas al máximo. Esto lleva a reflexionar sobre las posibilidades del tipo de bloque abierto como objeto capaz de trazar líneas de cohesión en una nueva zona de la ciudad.
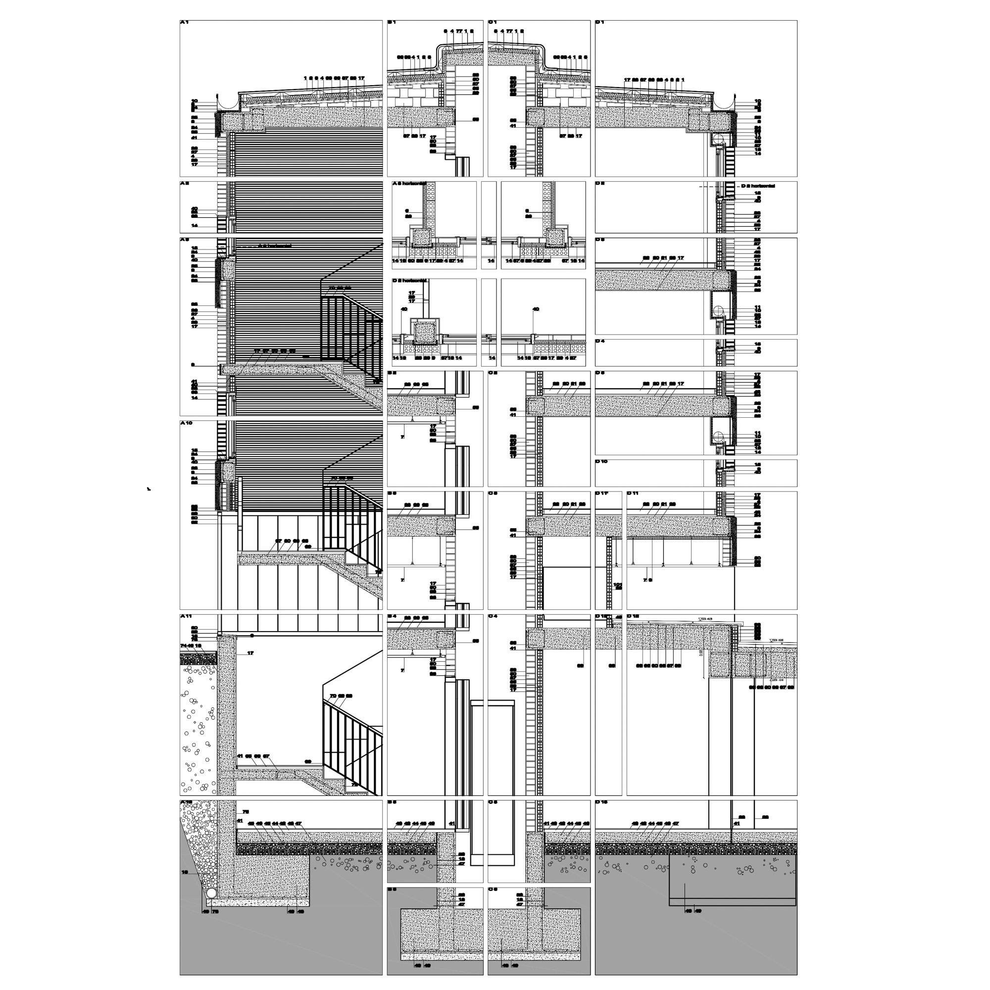
Los bloques se proyectan como objetos que mantienen una suerte de tensión respecto de su hermetismo. Las viviendas se suceden linealmente, componiendo sistemas ortogonales pero también una prolongada serie trazada como un boomerang. Están abiertas hacia unos pequeños patios interiores, lo que permite que los alzados se organicen mediante superficies continuas. Esta continuidad ayuda a leer con claridad la necesaria formación de las calles, pero está matizada por un grupo de mecanismos figurativos. Así todas las superficies de las fachadas están marcadas a modo de apilamientos que hacen intervenir expresivamente de manera muy poderosa a los materiales del cerramiento. Las volumetrías contundentes se manifiestan variadas por la localización evidentemente diversa de sus caras, y en los paños que coinciden con la vía principal del nuevo barrio emergen como brotes dispersos y singulares, los prismas coloreados de los balcones.
| Denominación: | CONCURSO y PROYECTO de 75 + 46 Viviendas VPO. en Campo de Tiro. |
| Lugar: | Valladolid |
| Fechas: | 2001-03 |
| Categoría: | concurso, Viviendas |
| Superficie: | 19.370,12m² |
| Presupuesto: | 6.129.223,61 € |
| Convocante: | VIVA Ayuntamiento de Valladolid |
| Autores: | Odimasp | Alberto Grijalba y Julio Grijalba |
| Colaboradores: | Efrén Doncel, Carmen Andrés, Pedro Bejo, Javier Vila Y Michael Hutting (Estudiantes de Arquitectura). Adamas (Instalaciones). Alberto Grijalba (Arq. Técnico).Carlos Ruiz |
| Fotografías: | Luis Asín |
Reconocimientos:
- 1ER PREMIO. CONCURSO de 75 Viviendas VPO. en P.P. Campo de Tiro.
- 1ER PREMIO. CONCURSO de 46 Viviendas VPO. en P.P. Campo de Tiro.


















