– Un vagón de tren flotando –

El barrio de «La Farola» es un característico asentamiento de carácter precario construido por casas-patio molineras, y consolidado a principios del siglo XX. Hasta convertirse hoy en un área enquistada en un nuevo centro urbano, próximo a la futura ciudad de la comunicación y tintado de servicios lúdicos, asistenciales y comerciales.
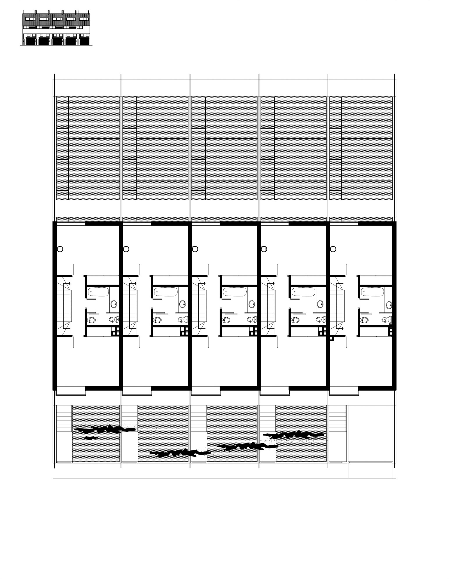
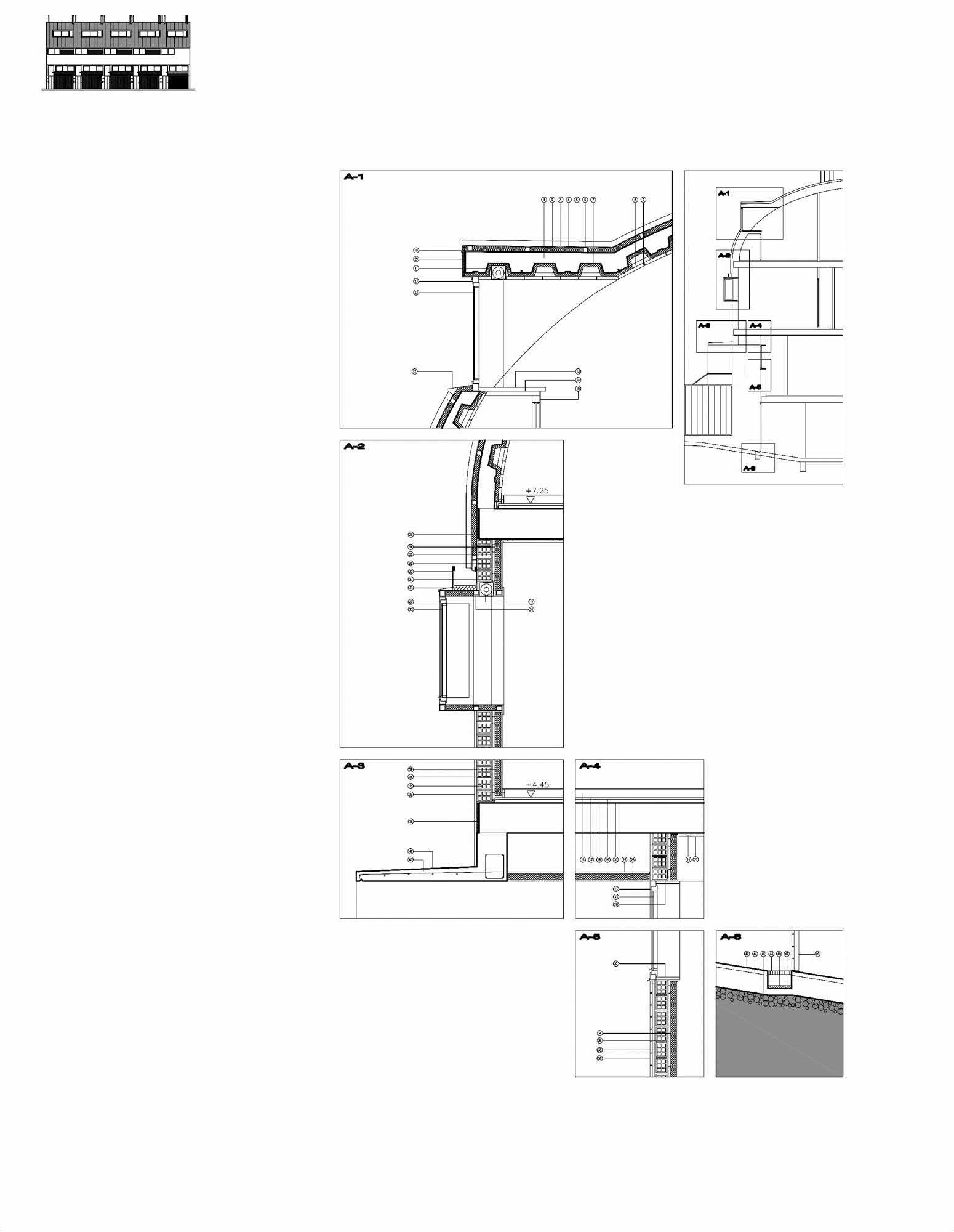
Su característica principal, en la actualidad, viene determinada por estar delimitado por la vía férrea principal de acceso a la ciudad de Valladolid desde el sur. Esta circunstancia propició la utilización del recurso de la metáfora ferroviaria en la ejecución del proyecto: construir un vagón de tren flotando en medio de una manzana definida por el nuevo plano «cero» de los tejados de las deterioradas viviendas circundantes. Así el volumen se concibe como un todo unitario con cubierta de chapa curva, revestimientos de madera de IPE, aluminio y revoco continuo.
Desde la calle de acceso se incluye un elemento de intermediación entre el rotundo vagón de tren y las viviendas molineras próximas, un muro de «Un-Glas» traslúcido que cierra los patios exteriores y privatiza un pequeño fragmento de la parcela.
| Denominación: | PROYECTO de 5 Viviendas en C/ del Sol |
| Lugar: | Valladolid |
| Fechas: | 1999-2000 |
| Categoría: | Proyecto, viviendas |
| Superficie: | 747,87 m² |
| Presupuesto: | 67.214.248 ptas |
| Propiedad: | GESTIÓN CINCO SOL |
| Autores: | Julio Grijalba, Eduardo Carazo y Víctor Ruiz |
| Colaboradores: | Alberto Grijalba (Arq. Técnico). Carlos Ruiz |
| Fotografías: | Luis Asín |
Reconocimientos:
- FINALISTA. IV PREMIO DE ARQUITECTURA DE CASTILLA Y LEÓN, COACYLE Y COAL. 2003
.













