– Una escultura habitada en el paisaje –

Queremos realizar un edificio ecoeficiente de altas prestaciones bioclimáticas, tanto desde un punto de vista pasivo como activo, pero sin renunciar a una arquitectura contemporánea.
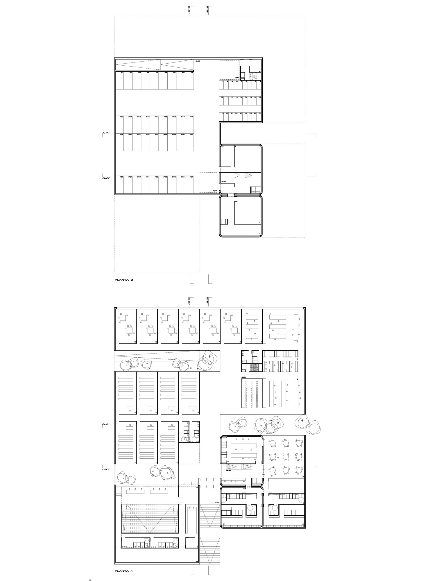
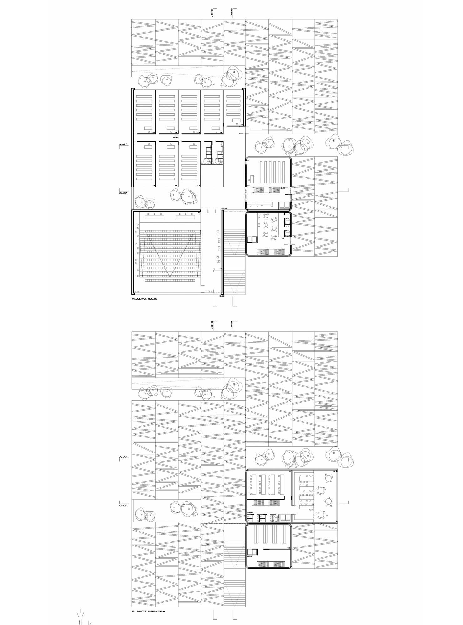
Desde el conocimiento de la metodología esencialista de una vertiente del minimalismo y su voluntad fundacional, pero sin dejarnos llevar por el puro método, proponemos construir una gran escultura habitable, un icono que de forma a una nueva institución de la cocina vasca. El edificio se proyecta como una sucesión apilada de dos plataformas que de algún modo se apoyan y flotan simultáneamente en el terreno para albergar el programa docente de modo versátil y flexible. Sobre ellas se yerguen dos retorcidos fragmentos que albergan el restaurante y la biblioteca. En una localización tan privilegiada el objetivo no es otro que ver y ser visto, una cocina trasparente que disfruta del entorno.
Por otra parte, al semienterrar gran parte del edificio, éste resulta protegido por la inercia térmica de la tierra circundante, con el consiguiente ahorro energético, complementado con el uso de muros de hormigón y termoarcilla, trasdosados interiormente, utilizando como aislante la fibra de celulosa de papel reciclado.
La morfología escogida plantea unas cubiertas planas ecológicas de última generación acabadas en parte mediante una plantación vegetal que retiene el polvo y la contaminación, es absorbente acústico con efectos refrigerantes y se riega con el agua recogida. El volumen emergente es una caja de doble vidrio de seguridad serigrafiado, de baja emisividad, con cámara de aire que alberga aire recirculado en ciclos de invierno y verano,”sunspace” complementado con una protección de celosía de viruta de madera reciclada y acero corten.
El sistema de climatización general será mediante suelo radiante-refrescante, que aprovechará la energía solar térmica producida en los colectores solares de cubierta. El sistema proyectado de energía solar térmica permitirá también la refrigeración gratuita del conjunto del edificio mediante el empleo de una bomba de calor y una máquina de absorción. Se aprovechará así durante el verano la energía solar térmica procedente de los colectores solares para acondicionar el edificio, junto con la incorporación de una caldera de biomasa.
La instalación eléctrica será realizada con conductores libres de halógenos. Se emplearán en la iluminación lámparas de bajo consumo, y un sistema de gestión del alumbrado que regule el flujo luminoso de las luminarias en función de la iluminancia natural proveniente del exterior.
| Denominación: | Concurso de proyectos con, intervención de jurado para la redacción de Proyecto Básico y asistencia técnica de diseño durante la Redacción del Proyecto de Ejecución y las obras de construcción de la facultad de Ciencias Gastronómicas y centro de investigación e innovación en ciencias Gastronómicas Basque Culinary Centre. |
| Lugar: | San Sebastián, Guipúzcoa. |
| Fechas: | 2009 |
| Categoría: | Concurso, edificio público. |
| Superficie: | 5.000 m² |
| Propiedad: | BASQUE CULINARY CENTER FUNDAZIOA |
| Autores: | odimasp | Alberto Grijalba Bengoetxea, Julio Grijalba Bengoetxea. |
| Colaboradores: | Yoana Cebrecos, (arquitectos) Y Alberto Rivas Panizo (estudiante de arquitectura). Alfonso Aramburu (infotografía). |



















