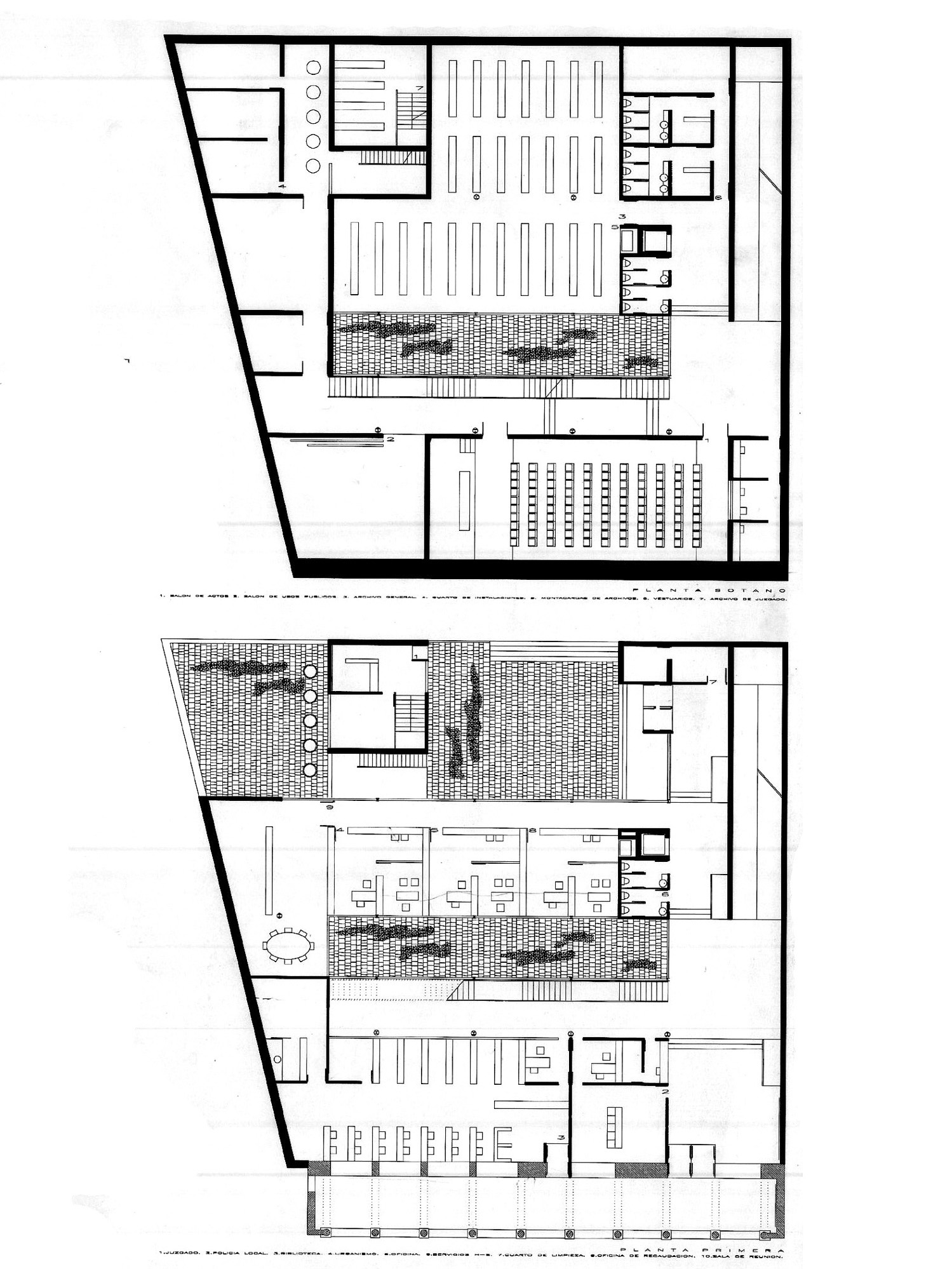
– Memoria, crujías y patios –

| Denominación: | 3ER PREMIO. CONCURSO, con intervención de jurado, para ampliación del Ayuntamiento de Iscar. |
| Lugar: | Íscar, Valladolid |
| Fechas: | 1997 |
| Categoría: | Concurso, restauración, edificio público |
| Propiedad: | Ayuntamiento de Íscar |
| Autores: | Alberto Grijalba Julio Grijalba, Eduardo Carazo y Paloma Gil |
| Colaboradores: | Alberto Gutiérrez y Alberto (Estudiantes de arquitectura) |
Reconocimientos:
- 3ER PREMIO. 3ER PREMIO. CONCURSO, con intervención de jurado, para ampliación del AYUNTAMIENTO DE ISCAR, Valladolid.







