– Tiempo. Memoria. Superposición –

En el año 2004, la Universidad de Valladolid y el Ayuntamiento de Valladolid convocaron un concurso de méritos, entre los arquitectos profesores de la ETSA de la UVA, que tenía como objeto escoger el equipo que llevara a cabo el proyecto de restauración del edifico de la C/ Puente Colgante para albergar la Casa de la India.
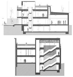
La estrategia desplegada, a la hora de acometer la restauración para la acomodación de un nuevo uso, fue la de reconstruir meticulosamente el volumen principal de la edificación existente y añadir dos elementos de adscripción claramente contemporánea, a modo de contenedor-mueble que debían albergar los usos públicos e institucionales, al mismo tiempo que se deberían de incorporar las nuevas tecnologías escénicas, de comunicación etc…
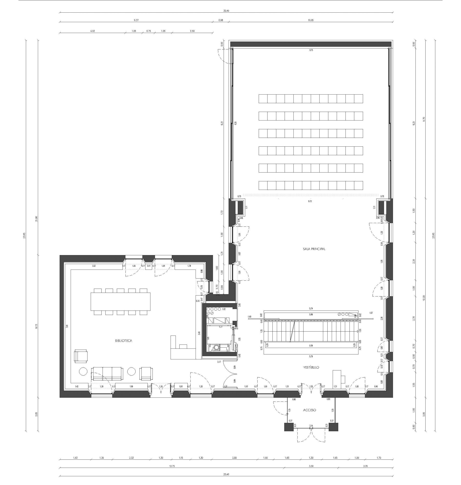
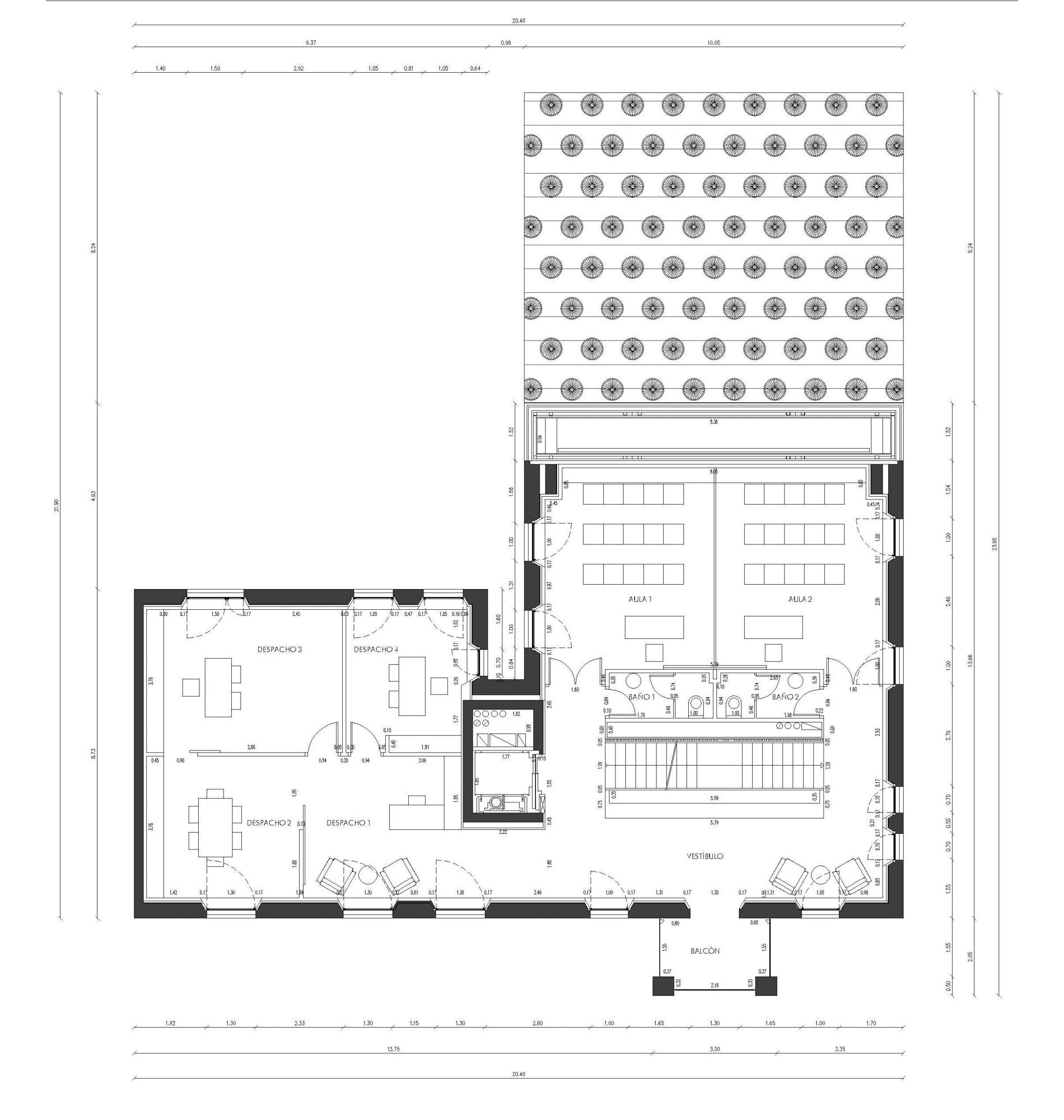
El resultado es una nueva configuración del espacio que, si bien respeta los elementos originales que comprendían el conjunto preexistente, es capaz de dotarlo de una diafanidad que permite un uso flexible y transformable del espacio. Esto representa una notable mejora en la medida en que los requerimientos de los nuevos usos son satisfechos con gran facilidad.
La propuesta fue construir dos cajas y una escalera para completar una edificación residencial heredada, que era importante por su presencia urbana, atendiendo a conceptos como el de protección del paisaje urbano y de la memoria.
Nuestro compromiso fue elaborar una documentación y restauración meticulosa de las partes antiguas del conjunto y una intervención claramente moderna en los espacios añadidos, diferenciada y en contraste con la antigua fábrica. Así, los nuevos volúmenes fueron resueltos con sistemas constructivos reversibles.
El resultado final fue respetuoso con las huellas que el tiempo había dejado sobre la piel de ladrillo, y permite una visión completa de la superposición de las diferentes etapas que el edificio ha vivido. De esta manera, el presente queda incorporado en la secuencia temporal por medio de nuestra intervención.
| Denominación: | CONCURSO y PROYECTO para la restauración del edificio de la C/ Puente Colgante, para la Casa de la India. |
| Lugar: | Valladolid |
| Fechas: | 2004-6 |
| Categoría: | concurso, restauración |
| Superficie: | 485,00 m² |
| Presupuesto: | 2.920.000 € |
| Convocante: | Uva, Ayuntamiento de Valladolid |
| Autores: | Odimasp | Alberto Grijalba y Julio Grijalba |
| Colaboradores: | Nils Koop y Sara Delagado (Arquitectos). Adamas (Instalaciones). Jorge Carcedo (estructura. Alberto Grijalba (Arq. Técnico). Carlos Ruiz |
| Fotógrafo: | Pedro Iván Ramos y Rafaella Bompiani |
Reconocimientos:
- 1Er PREMIO. CONCURSO para la restauración del edificio de la C/ Puente Colgante, para la Casa de la India.



























