– Un recorrido elevado de madera. Mirar y observar –

La construcción es en realidad sólo el paisaje, el terreno, el lugar y el recorrido.
El planteamiento general de la intervención, atiende a los recorridos y la forma en que el visitante va acercándose al conjunto, manteniendo en todo momento la máxima proximidad a la naturaleza.
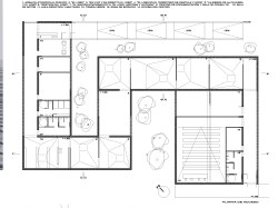
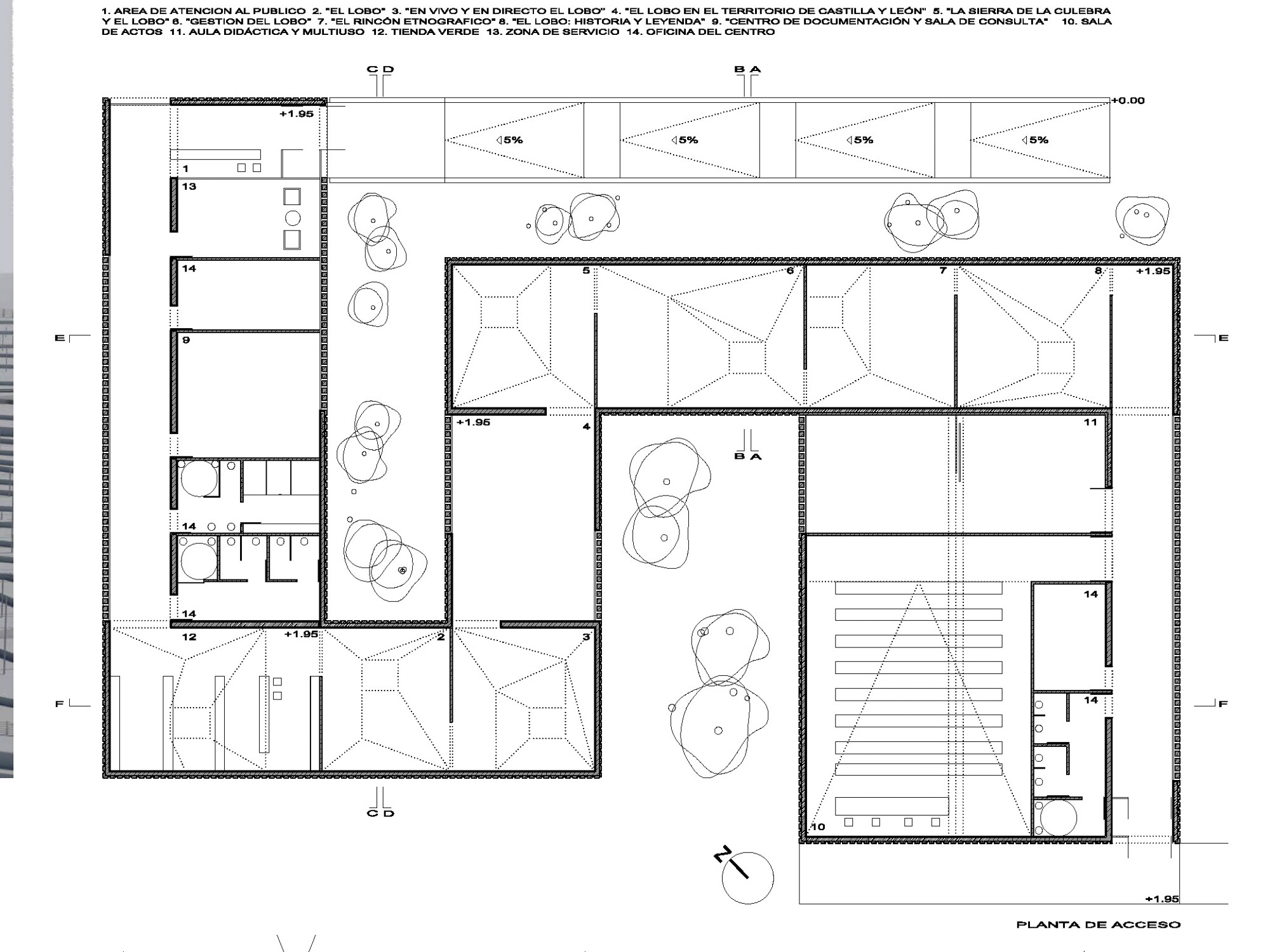
Atravesada la totalidad de la pasarela y a través de una primera rampa en zigzag se accede al edificio principal de exposición, que trata de integrarse en el entorno mediante una disposición orgánica de patios abiertos al bosque de pinos existente en la ladera y que se proyecta como un edificio-recorrido en “S” con una planta baja sobreelevada a la manera de ciertas tipologías tradicionales de montaña y que alberga una gran parte del programa del centro de modo versátil y flexible y que encadena en una secuencia continua las distintas áreas de interpretación rematando en un mirador hacia el área de los recintos de los lobos.
Al salir del edificio, el visitante se encuentra en el recorrido exterior, resuelto mediante pasarelas de madera de pino cuperizado para intemperie, ligeramente elevadas del terreno, para preservarlas de la humedad y las duras condiciones invernales, horizontal entramos y con rampas en otros, aunque cumpliendo las medidas de accesibilidad mas estrictas.
Desde este recorrido, se puede acceder a sendos observatorios elevados o habitáculos cubiertos ubicados a tres metros de altura, accesibles para minusválidos, y construidos en madera sobre cimientos de biohormigón que se asoman hacia el interior de las dos jaulas de los lobos. Estos observatorios cuentan con ventanas abocinadas cerradas con vidrio, abultadas al exterior, que permiten una visión de los lobos sin alterar su comportamiento. En los extremos, tienen cristaleras hacia el paisaje, que permiten luz y vistas.
Entre las dos jaulas, se propone una senda, ligeramente indicada con contenciones de madera y otros elementos menores de señalización, que conduce a la pasarela-observatorio, que pasa elevada sobre la conexión entre jaulas, y conduce a la parte superior del recorrido en la ladera. Esta pasarela cuenta con ventanas para observar a ambos lados, y sus extremos, como los de los otros observatorios, son grandes cristaleras sobre el paisaje.
El recorrido de la parte superior de la ladera, está proyectado con pasarelas de intemperie, como las ya descritas, que terminan en tres pequeños observatorios elevados, con dimensión suficiente para observaciones en grupo. Se propone la puesta en servicio de una pista existente en la parte alta de la ladera, lo que permitirá acceder a minusválidos también a este recorrido de observación superior.
Por último, en tres puntos del recorrido se proyectan observatorios a ras de terreno, para poder contemplar a los animales en su hábitat propio.
De este modo, todo el conjunto aparece en realidad como un recorrido natural, en el que los diversos edificios, con distintos grados de elevación y cerramiento, enmarcan determinadas visiones, fundiéndose la interpretación didáctica de la parte museística, con la observación directa de los animales y su hábitat, con connotaciones paisajísticas muy importantes
| Denominación: | Redacción de proyecto y ejecución de obras, correspondiente al centro temático sobre el lobo ibérico. |
| Lugar: | Robledo, Puebla de Sanabria |
| Fechas: | 2009. |
| Categoría: | Concurso, arquitectura y paisaje |
| Superficie: | 1.500 m² |
| Propiedad: | Junta de Castilla y León. Consejería de Medio Ambiente. |
| Empresa: | Ferrovial |
| Autores: | odimasp | Alberto Grijalba Bengoetxea, Julio Grijalba Bengoetxea |
| Colaboradores: | Yoana Cebrecos (arquitecto) Alberto Rivas y Elena Cubillo (estudiantes de arquitectura). Alfonso Aramburu (Infografías) |















