– Ecoeficiencia contemporánea. Un pabellón en un vivero –

Desde el compromiso de realizar un edificio ecoeficiente de altas prestaciones bioclimáticas, tanto desde un punto de vista pasivo como activo, pero sin renunciar a una arquitectura contemporánea, el planteamiento general del conjunto prevé la realización de un aparcamiento semioculto, a cota -2m., entre vegetación autóctona y pérgolas realizadas con paneles solares fotovoltaicos. El edificio principal se proyecta con una planta baja semienterrada que alberga una gran parte del programa de modo versátil y flexible, y una planta primera destinada a sala de exposiciones permanentes. Con ello se disminuye el impacto de la edificación en el entorno natural, hasta parecer prácticamente invisible.
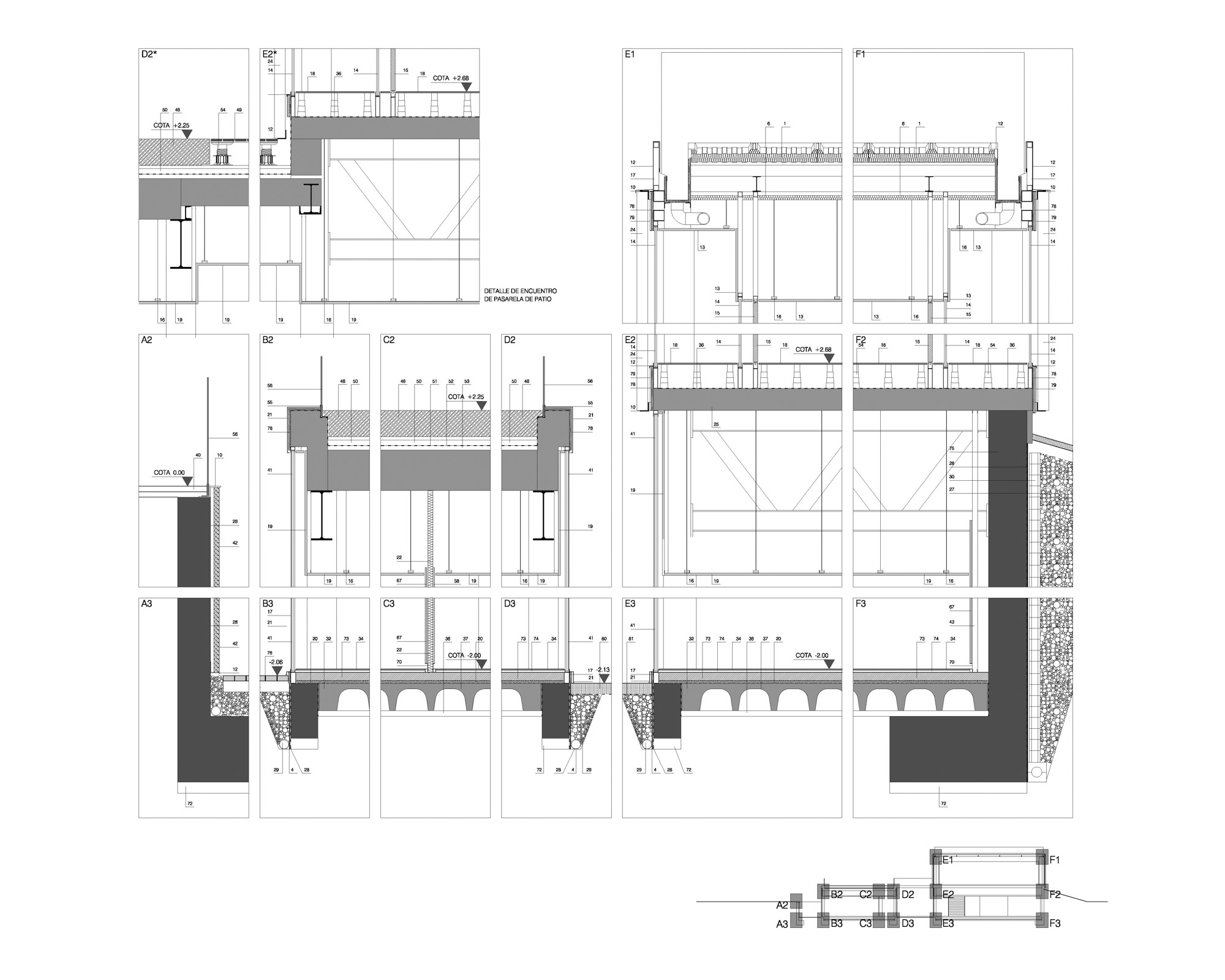
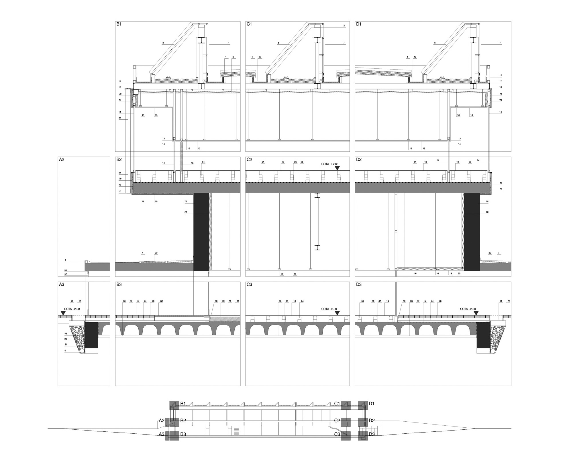
Por otra parte, al semienterrar gran parte del edificio, éste resulta protegido por la inercia térmica de la tierra circundante, con el consiguiente ahorro energético, complementado con el uso de muros de hormigón y termoarcilla, trasdosados interiormente, utilizando como aislante la fibra de celulosa de papel reciclado.
La morfología escogida plantea una cubierta plana ecológica de última generación acabada en una plantación vegetal que retiene el polvo y la contaminación, es absorbente acústico con efectos refrigerantes y se riega con el agua recogida sobre la cubierta de la sala de exposiciones y la superficie drenante del aparcamiento. El único volumen emergente es una caja de doble vidrio de seguridad serigrafiado, de baja emisividad, con cámara de 75cm. que alberga aire recirculado en ciclos de invierno y verano,”sunspace” complementado al sur y al oeste con una protección de celosía de viruta de madera reciclada.
El sistema de climatización general será mediante suelo radiante-refrescante, que aprovechará la energía solar térmica producida en los colectores solares de cubierta mediante tubos de alto vacío. Las ganancias térmicas por radiación en la sala de exposiciones permiten un gran ahorro en su calefacción durante la temporada invernal, pues la especial orientación del edificio proporciona una radiación a través de la fachada sureste, muy elevada en la latitud en que se sitúa el edificio. El sistema proyectado de energía solar térmica permitirá también la refrigeración gratuita del conjunto del edificio mediante el empleo de una bomba de calor y una máquina de absorción. Se aprovechará así durante el verano la energía solar térmica procedente de los colectores solares para acondicionar el edificio, junto con la incorporación de una caldera de biomasa producida en el mismo centro.
| Denominación: | CONCURSO NACIONAL , con intervención de jurado, para la construcción del Centro de Recursos Ambientales C.R.A., PRAE |
| Lugar: | Valladolid |
| Fechas: | 2005 |
| Fechas const: | 2006-8 |
| Categoría: | Concurso, proyecto, edificios públicos |
| Superficie: | 3.541 m² |
| Presupuesto: | 5.850.000€ |
| Convocante: | Consejería de Medio Ambiente. Junta de Castilla y León |
| Autores: | Odimasp | Alberto Grijalba y Julio Grijalba |
| Colaboradores: | Yoana Cebrecos, Pablo San Juan y Sara Delgado (Arquitectos). Jorge Carcedo (Estructura). Óscar Fernández (Instalaciones). Alberto Grijalba (Arq. Técnico) |
| Fotografías: | Miguel de Guzmán, Pedro Iván Ramos |
Reconocimientos:
- 1º PREMIO. CONCURSO NACIONAL CON INTERVENCIÓN DE JURADO para la construcción DEL CENTRO DE RECURSOS AMBIENTALES C.R.A. en Valladolid. Junta de Castilla y León.2005.
- 1º PREMIO en la I EDICIÓN DE LA CONSTRUCCIÓN SOSTENIBLE EN CASTILLA Y LEÓN. Consejerías de Fomento y Medio Ambiente de la Junta de Castilla y León por el CENTRO DE RECURSOS AMBIENTALES 2006.
- PROYECTO SELECCIONADO XI BIENAL DE ARQUITECTURA ESPAÑOLA “Lo próximo y lo necesario”. Organizan BEAU, CSCAE, UIMP), la Universidad de Alcalá, COACAN, FEMP, la Fundación Caja de Arquitectos EMVS). Madrid 2011.
- PROYECTO SELECCIONADO en el IV PREMIO DE ARQUITECTURA ENOR por el CENTRO RECURSOS AMBIENTALES C.R.A .Vigo 2009.
- Exposición SUSTAINABLE ARCHITECTURE ACROSS EUROPE. SELECCIONADO por el Consejo Superior de Arquitectos de España CSACE para representar a España. Consejo Superior de Arquitectos de Europa ACE-CAE y Escuela de Arquitectura y Urbanismo de la Universidad de Lovaina LOCI- UCL






















