– Memoria y baldaquino –

El conjunto del antiguo matadero municipal se proyectó entre 1926 y 1932 y se terminó de construir en 1936. La convocatoria del concurso se hace en 1925 y resulta vencedor el ingeniero Alberto Colomina Botí con una propuesta atenta al carácter industrial, detallista y de inspiración ecléctica; un proyecto que es finalmente modificado a la búsqueda de una expresividad más moderna, tal y como solicitaban algunos miembros del jurado.
DESCRIPCIÓN DEL ESTADO ACTUAL DEL EDIFICIO.
El edificio que actualmente se conserva, formaba parte de las instalaciones del matadero, destinado a matanza de porcino y cargadero. Es por tanto un fragmento de un conjunto más complejo, que, utiliza como todo el conjunto, el lenguaje de la arquitectura moderna dentro de los estilemas que podríamos denominar como del primer racionalismo
PROGRAMA DE NECESIDADES Y SOLUCIÓN ADOPTADA
En este proyecto se ha tratado, tal y como se contemplaba en la memoria de la propuesta presentada a concurso en su momento, de integrar una parte de los edificios existentes en el antiguo matadero mediante su rehabilitación, con la incorporación de nuevos volúmenes.
Se mantienen dos naves que forman parte de la estructura original del conjunto. La mayor de las naves, junto con un volumen añadido en los bordes, se destina fundamentalmente a Hogar para la Tercera Edad, y la menor, se propone como Centro de Día.
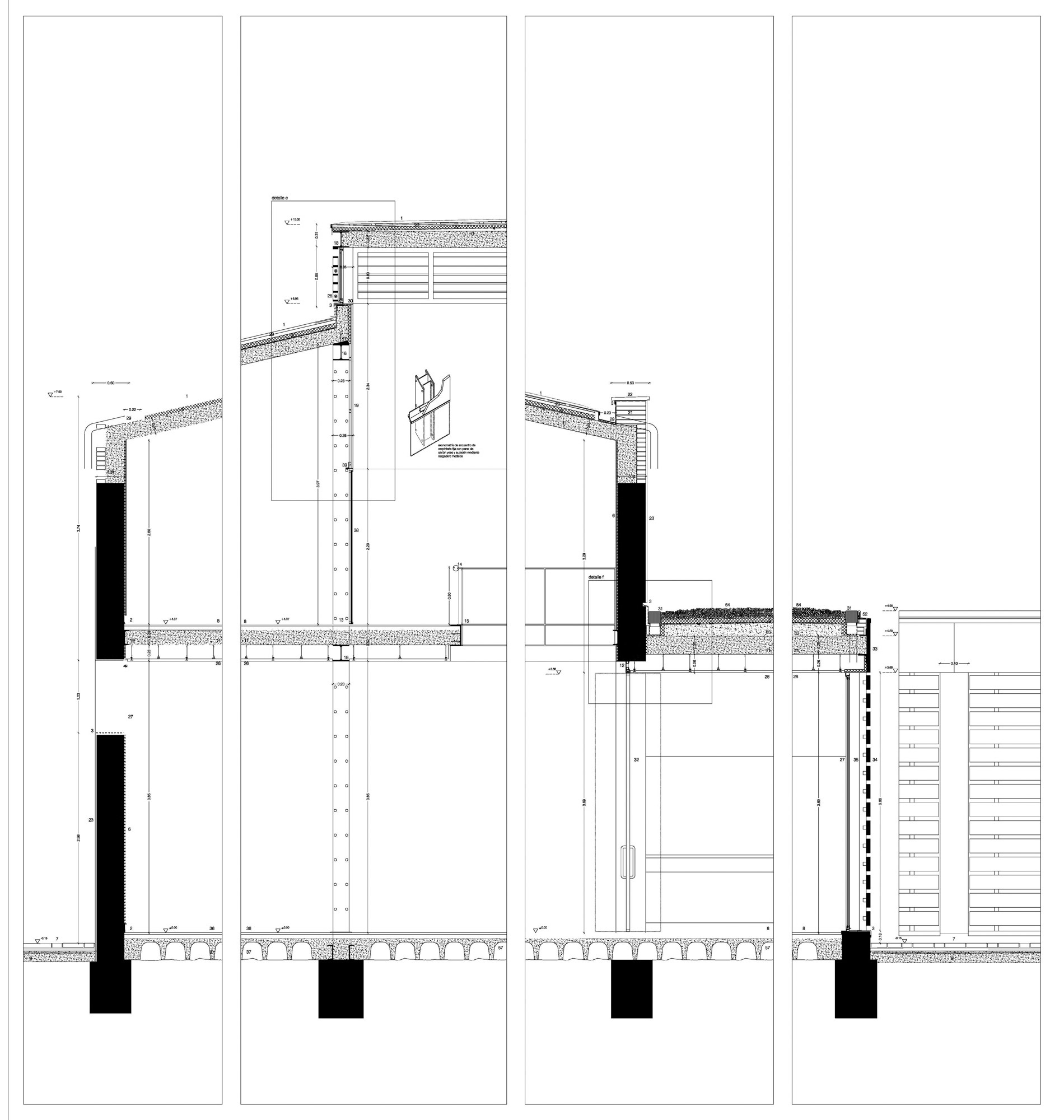
Así y mientras el carácter austero y la repetición modular se corresponden con el carácter industrial del conjunto, los materiales de las nuevas construcciones son considerablemente de mayor calidad y adecuación que los de los primitivos pabellones. El Centro para la Tercera Edad presenta unos criterios compositivos semejantes y una cierta homogeneidad en su aspecto exterior respecto a estos últimos.
Exteriormente el edificio, se organiza en los pabellones nuevos mediante un “baldaquino” estructural definido mediante paneles de hormigón prefabricado y bandas de piedra separadas entre sí en forma de celosía que permite filtrar la luz hacia el interior. Los pabellones correspondientes al antiguo matadero, por el contrario, se restauran con un acabado de estuco pétreo, en tonos semejantes a los originales.
| Denominación: | Centro de personas mayores «Zona Sur». Antiguo Matadero. |
| Lugar: | Valladolid |
| Fechas: | 2005 |
| Categoría: | Concurso, restauración |
| Superficie: | 1.566.97 m² |
| Presupuesto: | 1.339.634,08 € |
| Convocante: | Ayuntamiento de Valladolid. Concejalía de Bienestar Socia |
| Autores: | José Ignacio Linazasoro, Alberto Grijalba, Julio Grijalba, Paloma Gil y Eduardo Carazo |
| Colaboradores: | César Fernández y Hugo Sebastián (arquitectos). Marta Álvarez y Mauro Doncel (Estudiante de arquitectura). Alberto Grijalba, Santiago Hernán, Juan Carlos Corona (Arquitectos Técnicos) |
| Fotografías: | Javier Azurmendi (maqueta) y Jordi Perda (edificio) |
Reconocimientos:
- FINALISTA. IV PREMIO DE ARQUITECTURA ENOR, Vigo 2009.























