– Pliegues serpenteantes entre patios. –
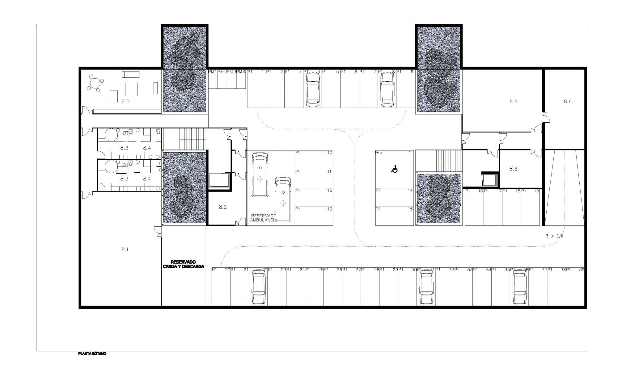
Dadas las características impuestas por la normativa urbana, el proyecto se organiza como una edificación aislada. Tiene fachadas a una vía rodada con aparcamientos (Norte) y a un parque (Oeste) y lindes con dos solares colindantes (Sur y Este), con lo que las referencias al edifico con el exterior son distintas y están jerarquizadas según la importancia de cada lindero.
Se ha proyectado un edificio continuo, plegado sobre sí mismo, de dos alturas, consiguiendo con ello una gran extensión de fachadas con la totalidad de los espacios iluminados y ventilados naturalmente al exterior o a patios abiertos a fachadas. Los accesos públicos están claramente marcados en las fachadas y los límites bien protegidos.
La distribución continua de los espacios en torno a sus pliegues se realiza en forma serpenteante. Este se apoya en un lateral que contiene la entrada al Centro de Salud, las escaleras, los ascensores, servicios públicos y una banda ancha de distribución, de la cual parten los pasillos hacia las consultas y otras dependencias ligadas a los patios. Se logra con ello claridad de circulaciones para una buena orientación del usuario y recorridos alternativos entre espacios funcionales para una mayor versatilidad de usos y su posible modificación futura sin afectar a las partes comunes del edificio.
| Denominación: | Concurso de redacción de proyecto básico y de ejecución, proyectos específicos de instalaciones y estudio de seguridad y salud de las obras de construcción del centro de salud «La Guindalera» de Logroño. |
| Lugar: | Logroño |
| Fechas: | 2009 |
| Categoría: | concurso, edificio publico |
| Superficie: | 3.300,58m² |
| Presupuesto: | 4.619.000 € |
| Propiedad: | Consejería Salud de La Rioja |
| Autores: | Odimasp | Julio Grijalba, Alberto Grijalba |
| Colaboradores: | Yoana Cebrecos (arquitecto) Alberto Rivas (estudiante de Arquitectura). Alberto Grijalba (Arq. Técnico). Gabriel Candela (Instalaciones). Jorge Carcedo (Estructura) |















