– Muros blancos de cerámica con patios de vidrio y madera –

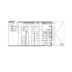
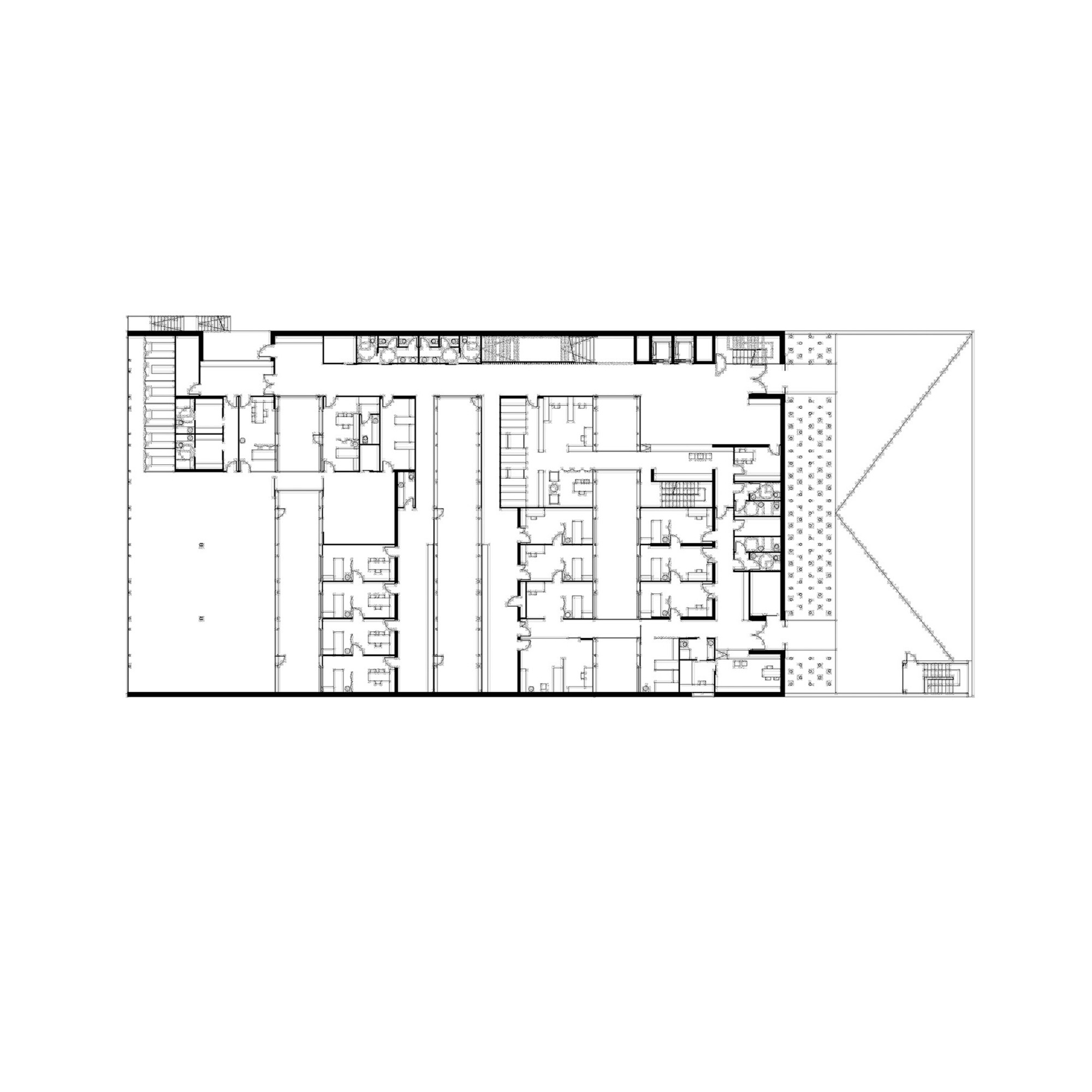
La distribución de los espacios en torno a los patios se realiza en forma de peine. Este se apoya en un lateral que contiene la entrada, la escalera los ascensores, servicios públicos y una banda ancha de distribución, de la cual parten los pasillos hacia las consultas y otras dependencias ligadas a los patios.
En la tipología estudiada para el proyecto se ha tenido en cuenta la posibilidad de que el edificio pueda ser fácilmente ampliable, sin que esta circunstancia suponga una alteración en su organización general.
En los patios interiores se ha proyectado un sistema de estructura de “fachada-celosía”, de manera que una serie de finos pilares dispuestos a muy corta distancia resuelven las cargas de los forjados y hacen a la vez de sistema de fachada con unos “brise-soleis” de madera, que también resuelven la independencia de las vistas y la privacidad de las consultas, permitiendo a la vez la máxima iluminación de todos los ámbitos.
Se ha proyectado la utilización de perfiles de vidrio de gran rigidez, que permiten la construcción de grandes paramentos sin necesidad de interponer perfiles metálicos a excepción de los que forman el bastidor perimetral.Se coloca desde el suelo hasta el techo con abertura entre cada elemento sobre perfiles metálicos y bandas de apoyo en poliestireno y tacos de poliestireno en fijación. Los elementos de U-gass tienen una dimensión de 26,2×4,1 cm.
| Denominación: | CONCURSO y PROYECTO para el Centro de Salud » La Victoria». |
| Lugar: | Valladolid |
| Fechas: | 2003 – 2006 |
| Categoría: | concurso, edificios publicos |
| Superficie: | 4.287,38 m² |
| Presupuesto: | 3.102.108 € |
| Convocante: | Junta de Castilla y León. Gerencia Regional de Salud |
| Autores: | Odimasp | Alberto Grijalba y Julio Grijalba |
| Colaboradores: | Nils Koop (Arquitecto). Daniel Fernández ,Noelia Galván, José Mª Ordóñez Pastor. (Estudiantes de Arquitectura). Jorge Carcedo (Estructura). Alberto Grijalba (Arq. Técnico) |
| Fotografías: | Miguel de Guzmán y Rubén Hernández Carretero |
Reconocimientos:
- 1ER PREMIO.CONCURSO para la Construcción Centro de Salud » La Victoria».
- FINALISTA en el VIII PREMIO DE ARQUITECTURA DE CASTILLA Y LEON. 2011.



























