– Un mueble de madera –

Parece posible suponer que, sobre los viejos lienzos de la primitiva fortaleza del siglo XI, la familia de los Avellaneda reconstruyó hacia la segunda mitad del siglo XV, por mediación de Dª Aldonza de Avellaneda (1427-1473) y de su marido Dº Diego López de Zúñiga, el actual castillo; dedicado posteriormente a armería, al menos hasta el siglo XVIII.
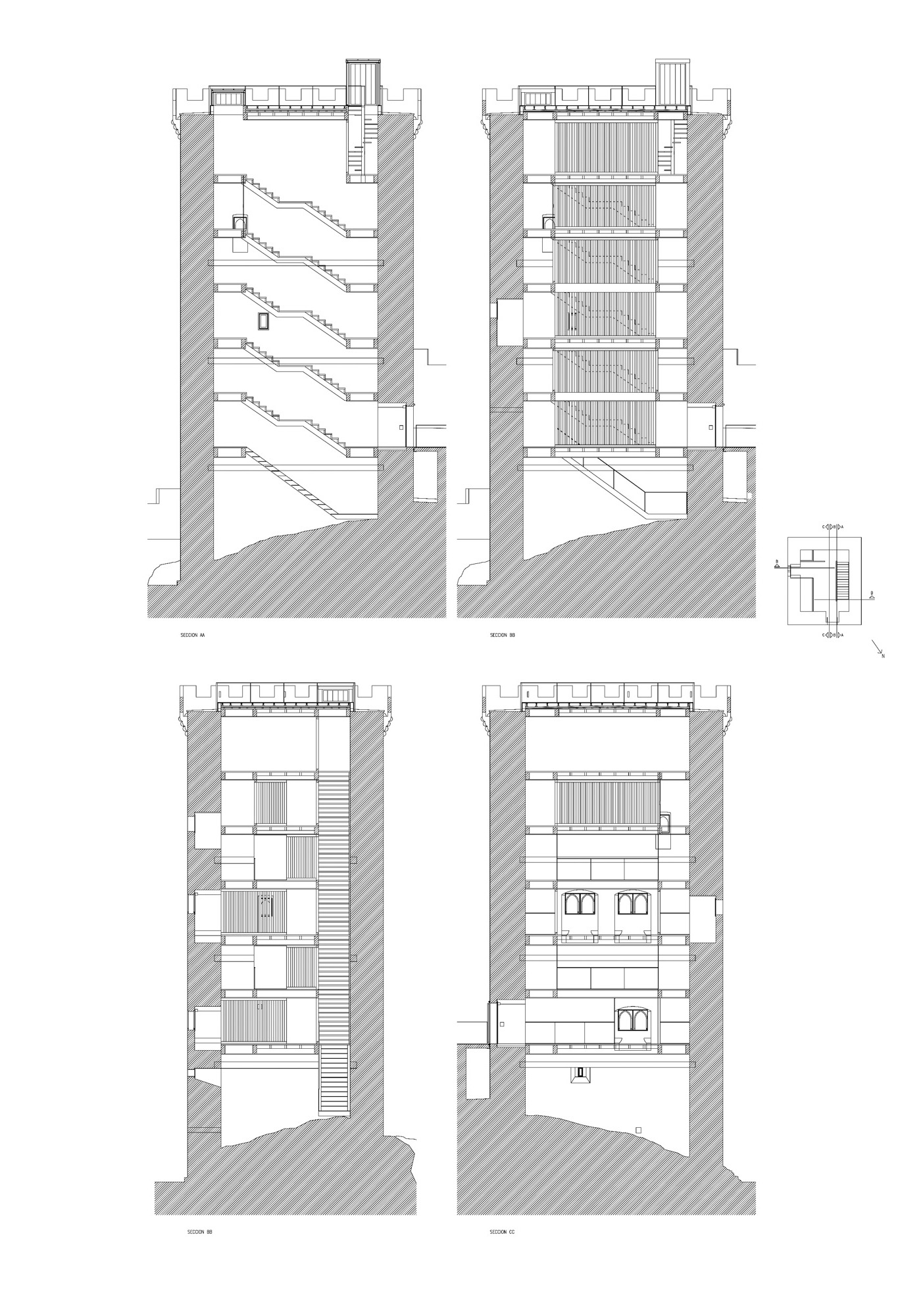
Posteriomente el castillo es abandonado hasta caer en ruina. Sin embargo a mediados del siglo XX, la Torre del Homenaje es consolidado, zunchando sus muros de mampuesto mediante zunchos de hormigón hoy todavía visibles. En el momento de nuestra intervención, la torre se erguía como un tubo hueco, vacío en su interior y sin plantas intermedias ni cubierta.
El proyecto propone la recuperación de la torre para poder albergar un centro de interpretación de los castillos de la línea defensiva del Duero. La estrategia empleada es la ejecución de un gran «edificio mueble» en altura, con un total de siete niveles, encajado en el espacio vacante interior de la torre.
Para ello el proyecto está especificamente atento a las juntas entre el contenedor y el mueble, sin modificar las condiciones de contorno de la torre, diseñando todas las juntas secas y limpias. Esta actitud permitirá siempre el principio de reversibilidad de toda intervención, principio que nos parece adecuado en los espacios de restauración que como éste, restituyen un espacio doméstico desaparecido: el interior de la Torre del Homenaje.
Tan solo tres materiales: madera de roble, estructura de pino laminado y vidrio de seguridad, conforman la propuesta.
| Denominación: | PROYECTO de Rehabilitacíon de la Torre del homenaj del castillo de Peñaranda de Duero. |
| Lugar: | Peñaranda de Duero, Burgos |
| Fechas: | 1999 – 2000 |
| Categoría: | Restauración. |
| Superficie: | 696,18 m² |
| Presupuesto: | 196.419,44 € |
| Propiedad: | Ayuntamiento de Peñaranda de Duero, Burgos |
| Autores: | Tpa | Julio Grijalba |
| Colaboradores: | Detet Renner, (Estudiante de Arquitectura). Alberto Grijalba (Arq. Técnico). Carlos Ruiz |
| Fotografías: | Luis Asín. |



























