– Recuperar y reutilizar. Ready Made –

El proyecto parte de un planteamiento respetuoso con toda la construcción realizada. Pretende ser un ejercicio de RESPONSABILIDAD y de AUSTERIDAD. El objetivo es la RECUPERACIÓN DEL ESPACIO principal de la “Tejera” original, de modo que las distintas etapas que forman la HISTORIA del conjunto se muestren de una manera clara. Así. El procedimiento seguido se plantea próximo al concepto de “READY MADE” que la vanguardia del siglo XX nos legó. Se trata por un lado de RECUPERAR, y por otro, de REUTILIZAR, dando nuevos significados al espacio resultante y a los edificios en su relación con la ciudad. La propuesta se organiza en cuatro fases independientes:
IMPLANTACIÓN URBANA. URBANIZACIÓN
En primer lugar se plantea una clara diferenciación entre la NUEVA ZONA VERDE, continuación natural del área de parque y jardín asociada a la subida al Cristo del Otero, y un espacio a modo de LONJA que resuelve los accesos a todo el conjunto edificado. El gran jardín conecta con el espacio estancial abierto en el que se ubican tanto el anfiteatro teatro al aire libre como el área de reunión de descanso donde se ubican los juegos infantiles.
Simultáneamente, el acceso natural se realiza, por un lado, desde la calle Miguel de Benavides, a modo de gran PLATAFORMA que conecta la totalidad de lo construido, incluyendo la comunicación con el Instituto de Secundaria Virgen de la Calle. Por otro, desde la Avenida de Santander, se gestiona el acceso de mercancías
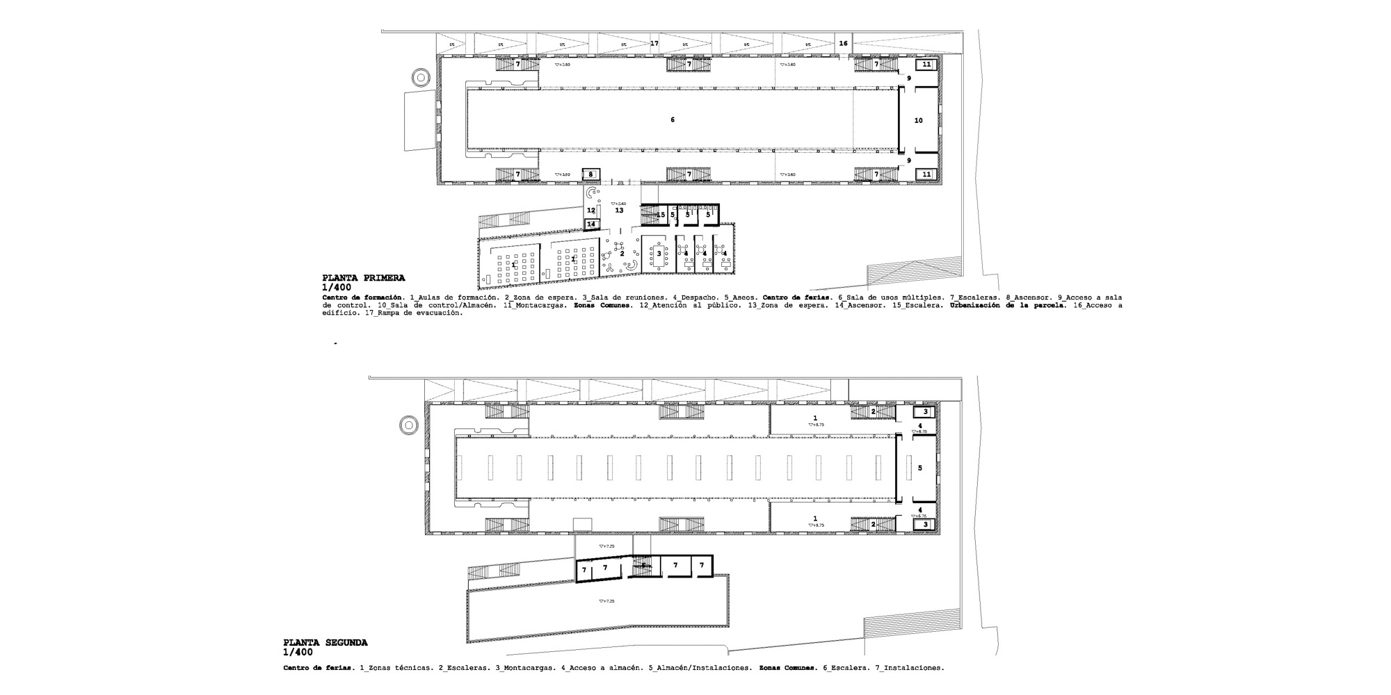
LA ANTIGUA “TEJERA”. EDIFICIO PRINCIPAL
El proyecto pretende RESPETAR E INTEGRAR las distintas intervenciones que a lo largo del tiempo se han venido sucediendo, siempre con el objetivo de recuperar el volumen y el espacio de la antigua instalación cerámica industrial decimonónica.
Los HORNOS, situados en planta baja, son unos elementos constitutivos esenciales del pasado fabril, por ello se propone mantenerlos de manera integral, mediante una RESTAURACIÓN DE BAJO COSTE. Dando como resultado la posibilidad de albergar en ellos nuevos usos complementarios a la actividad principal.
El espacio de mayor dimensión se diseña para que sea altamente eficaz, de manera POLIVALENTE Y FLEXIBLE, capaz de dar respuesta funcional a actividades muy variadas, como ferias, congresos, conciertos etc… Ahora bien ello no está reñido con la firme voluntad de generar un ESPACIO EMBLEMÁTICO y fuertemente caracterizado, para lo cual se recupera la LUZ CENITAL original y se refuerza la condición “BASILICAL” de su interior, tan próximo a espacios “Litúrgicos” y a su vez tan presente en muchas construcciones industriales del siglo XIX.
Desde un punto de vista material, fábricas de ladrillo restauradas, madera, luz cálida y lo “Blanco” atemporal, construyen la propuesta.
EL EDIFICIO ANEXO
Es concebido claramente como un anexo a la construcción original, debe, por tanto, de reforzar su condición de nuevo y DIALOGAR con gran edificio industrial precedente. Por ello se diseña una CONEXIÓN entre ambos de marcado carácter TRANSPARENTE, en forma de grieta, a modo de JUNTA VACÍA que separa los dos volúmenes construidos.
El objetivo es terminar el edificio anexo para ser capaz de acoger el restaurante y las aulas de formación, reconocible como edificio auxiliar, que se separa de la “Tejera” y que se presenta como un ejercicio de DIÁLOGO entre lo “nuevo” y lo “viejo”.
EL EDIFICIO BAJO RASANTE
La primera cuestión importante a resolver es dotar a este edificio de unos ACCESOS SUFICIENTES. De esta manera se asume como acceso peatonal la rampa construida a lo largo de la calle Miguel Benavides. El recorrido a través de la misma conduce directamente al vestíbulo de la nueva Sala de Conferencias.
Se propone insertar un PATIO acristalado situado entre el edificio anexo y el edificio principal. De esta manera se resuelve simultáneamente la ILUMINACIÓN, la evacuación y el acceso. Accesos que puede ser independizado para el uso exclusivo de los Talleres y la sala de Exposiciones.
| Denominación: | Concurso con intervención de jurado de rehabilitación de la antigua fábrica «La Tejera» de Palencia para Centro de Formación, Congresos y Ferias |
| Lugar: | Palencia |
| Fechas: | 2016 |
| Categoría: | concurso, restauración |
| Superficie: | 6.300 m² |
| Presupuesto: | 6.235.000 € |
| Convocante: | Ministerio de Fomento. D. General de Arquitectura y Edificación |
| Autores: | Alberto Grijalba Bengoetxea, Julio Grijalba Bengoetxea |
| Colaboradores: | Rebeca Merino (arquitecto) Javier Ferrin, José Ignacio Maté (Arq. Técnicos), Inaso (Estructuras) y Oscar Fernández (Instalaciones) |
Reconocimientos:
- 1º ACCÉSIT CONCURSO DE PROYECTOS CON INTERVENCIÓN DE JURADO. obras de rehabilitación de la antigua fábrica LA TEJERA de Palencia para Centro de formación, Congresos y Ferias.
- EXPOSICIÓN: LECRAC. Centro Cultural Antigua Cárcel, Palencia. Nov, 2016.











