– Un zócalo volcánico tallado en madera, luz y mármol. –

El proyecto asume la aplicación estricta de la normativa urbanística vigente sobre el solar. Así, se parte del aprovechamiento máximo de la parcela, definiendo el área de proyecto y sus alineaciones coincidentes con las alineaciones máximas admitidas.
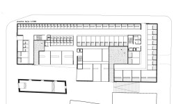
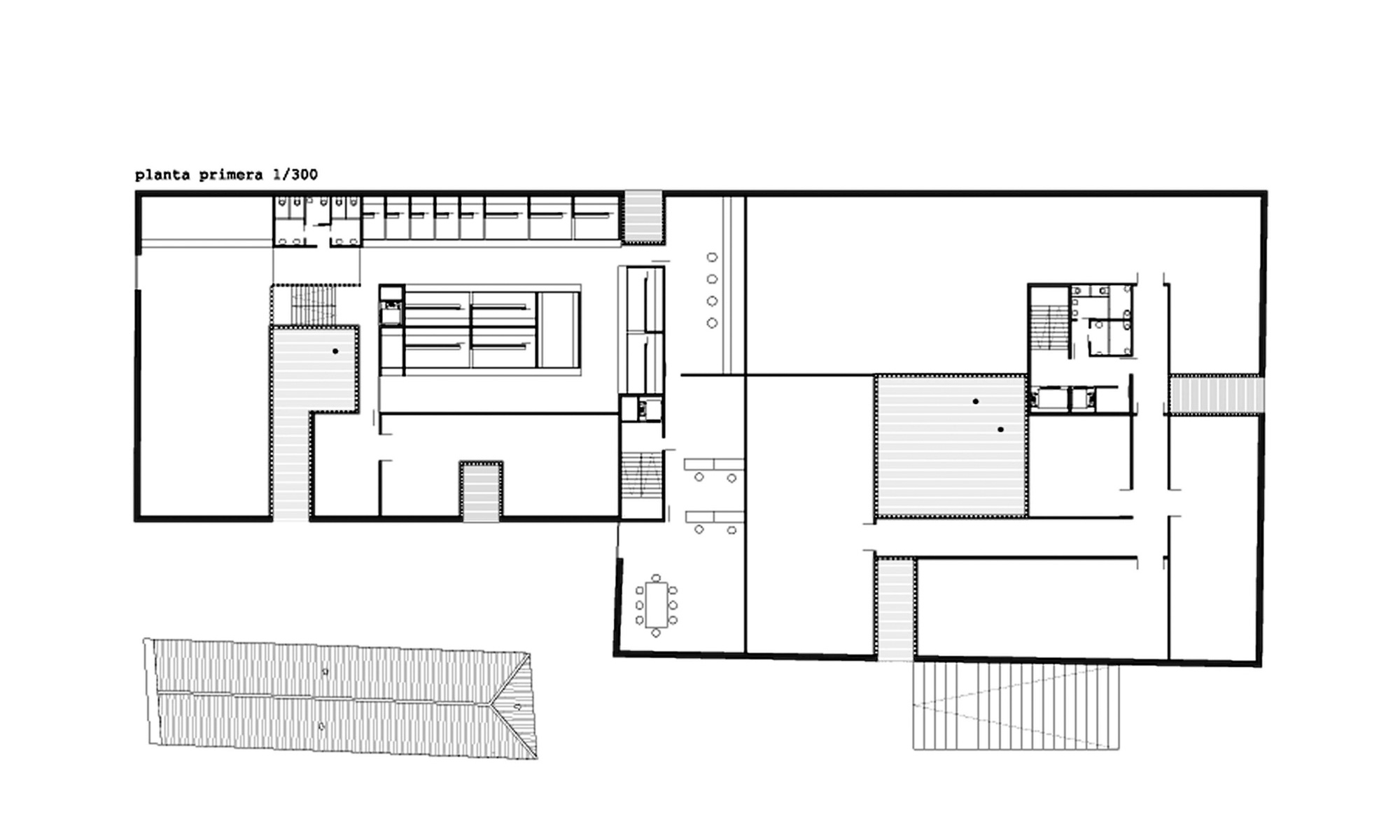
Del mismo modo, se plantea la realización de un edificio-zócalo que agota la altura permitida de 2 plantas en todo el volumen. Sobre este zócalo se plantea la elevación de un conjunto de volúmenes que completan una tercera planta al límite de las alineaciones marcadas. El edificio-zócalo se proyecta en piedra volcánica como un volumen tallado y perforado con dos patios que son continuidad de las tipologías coloniales, resueltas como muros ciegos al exterior y patios de madera con vegetación en el interior.
El mercado, en él contenido, es en realidad un espacio tallado a su vez en un mármol blanco que inunda suelos, paredes o puestos. La luz colabora en definir toda la propuesta: resbala desde arriba, penetra por los patios, y perfora el muro sobre los puestos de venta.
Superpuestas al volumen generado por las dos plantas inferiores, emergen unas conchas de mármol blanco que completan la volumetría en sección y acogen los usos mixtos solicitados. La plaza del Adelantado exige una imagen austera formalmente, que permita una adecuada integración del conjunto con la antigua ermita de San Miguel.
| Denominación: | CONCURSO INTERNACIONAL de proyectos de Arquitectura con INTERVENCIÓN DE JURADO por el Excmo. Ayuntamiento de San Cristóbal de La Laguna denominado “RECONSTRUCCIÓN DEL MERCADO DE LA LAGUNA” |
| Lugar: | La Laguna, Tenerife. |
| Fechas: | 2012 |
| Categoría: | concurso, edificio público |
| Superficie: | 12.000 m² |
| Presupuesto: | 9.000.000 € |
| Propiedad: | Ayuntamiento de San Cristóbal de La Laguna, Tenerife. |
| Autores: | odimasp | Alberto Grijalba Bengoetxea, Julio Grijalba Bengoetxea |
| Colaboradores: | Laura Ibáñez Gutiérrez (arquitecto) y Estela Frades Estévez (estudiante de arquitectura) |
Reconocimientos:
- 1º ACCESIT CONCURSO INTERNACIONAL de ideas para la construcción de NUEVO MERCADO LA LAGUNA.
Publicaciones:













