– Muro habitado –

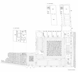
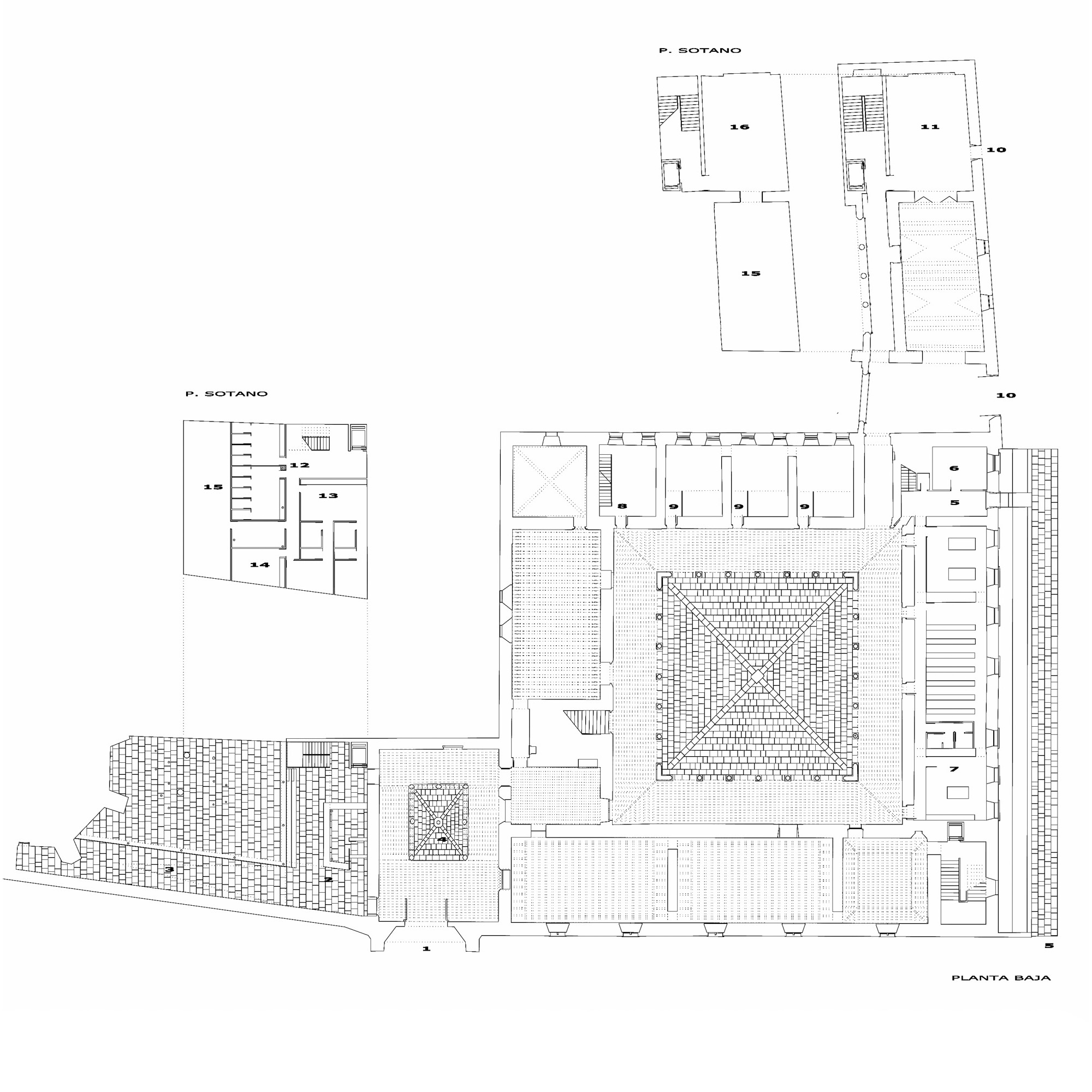
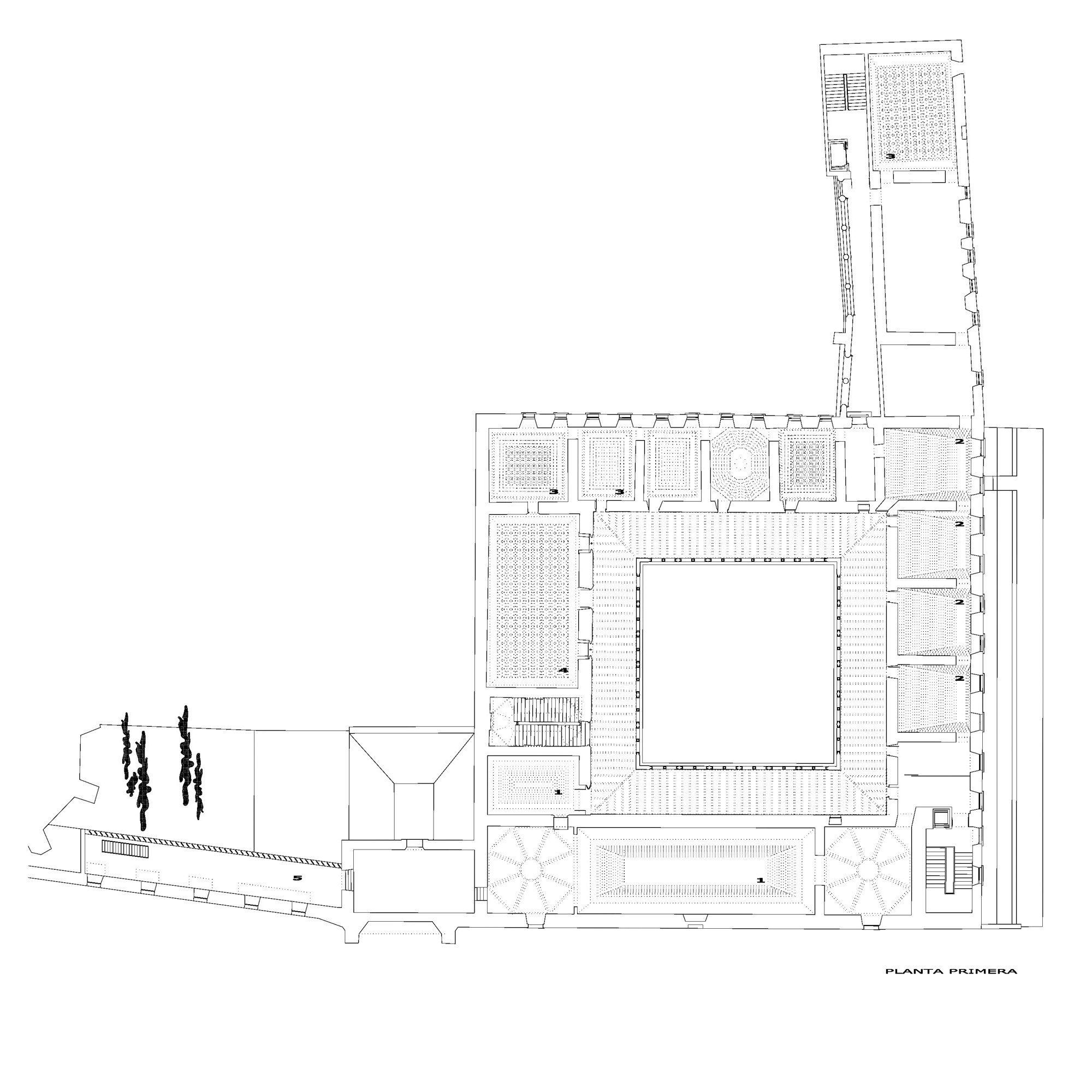
El proyecto se centra en dos aspectos fundamentales: el primero se refiere a la consolidación, restauración y recuperación del edificio histórico del antiguo Colegio de San Gregorio, y el segundo supone la adaptación del mismo edificio a los nuevos usos especificados en el Plan Museológico con la propuesta de diversas intervenciones, que se harán en atención al valor singular del conjunto, con criterios de reversibilidad. Se ha entendido que la arquitectura histórica del edificio es un «fuerte condicionante de la colección, además de la principal pieza que el propio Museo exhibe» hecho este, que implica el máximo respeto de cualquier intervención, y la necesidad de que el espectador pueda considerar a lo largo de todo el recorrido, el significado histórico y espacial de las estancias por las que discurre su visita.
En la actuación se ha tenido en cuenta el funcionamiento como unidad del Palacio de San Gregorio y el Palacio de Villena, de modo que los usos del programa de necesidades a los que se refiere el Pliego de Condiciones, se entiende que están repartidos convenientemente entre los dos edificios.
Por otro lado, respecto a los valores singulares del edificio, su preservación estará vinculada a los sistemas constructivo, espacial y compositivo. Especialmente se prestará atención a los elementos singulares que forman parte del sistema constructivo, que serán objeto de actuaciones de recuperación, restauración y puesta en valor.
De aquí la importancia del criterio de reversibilidad , que afectará a todas las actuaciones, y en especial a aquellas enfocadas hacia los elementos singulares, de modo que ninguna pueda considerarse definitiva en el tiempo. Para ello se pondrá una especial atención a las líneas de unión entre lo existente y los nuevos elementos construidos a partir del proyecto, al mismo tiempo que el propio proyecto ha sido concebido para no modificar las estructuras esenciales del conjunto histórico, de hecho, en la investigación del proyecto se han reinterpretado determinadas situaciones espaciales o elementos particulares de cuya existencia existen datos históricos documentales. Tal es el caso de la galería que se desarrolla sobre el muro de la entrada, o de algunas divisiones de las estancias pertenecientes al claustro, o de los huecos de luz, que tanta importancia tienen en la definición del espacio interior.
Se plantea un criterio de intervención mínima, de diferenciación de los nuevos añadidos, evitando los falsos históricos, pero desde la supeditación a los valores del edificio de gran valor que es San Gregorio.
| Denominación: | CONCURSO de renovación del Museo Nacional de Escultura San Gregorio. |
| Lugar: | Valladolid |
| Fechas: | 1999 |
| Categoría: | Concurso, restauración |
| Superficie: | |
| Presupuesto: | |
| Convocante: | Ministerio de Cultura |
| Autores: | Julio Grijalba, Alberto Grijalba, Paloma Gil y Eduardo Carazo. |
| Colaboradores: | Mauro Doncel y Efrén Doncel (Estudiantes de arquitectura), J&G Ingenieros. Alberto Grijalba (Arq. Técnico), Carlos Ruiz |











