– Nave única de muros complejos. Luz y sombras entre patios. –

El proyecto es una respuesta a las interacciones de un programa con un lugar. El lugar es siempre un dato esencial, tanto por su configuración topográfica como por sus límites.
Existe, en la parcela, un cambio de nivel cercano a 1,5m., lo que induce a organizar la propuesta mediante la articulación de plataformas, de modo que los elementos importantes se vayan progresivamente encontrando con el suelo, no enfrentándose a él con geometrías ajenas. A través de una idea controlada de los niveles se produce el tallado de la superficie del terreno de manera análoga a las realizadas en la Grecia clásica, para la ubicación del auditorio exigido.
El cambio de cota de la parcela ha impulsado también la idea de una cubierta totalizante. La cubierta está cargada de contenido en su extensión, su masa y su textura, ya que se implica absolutamente en la estructura de tapiz que alimenta el proyecto.
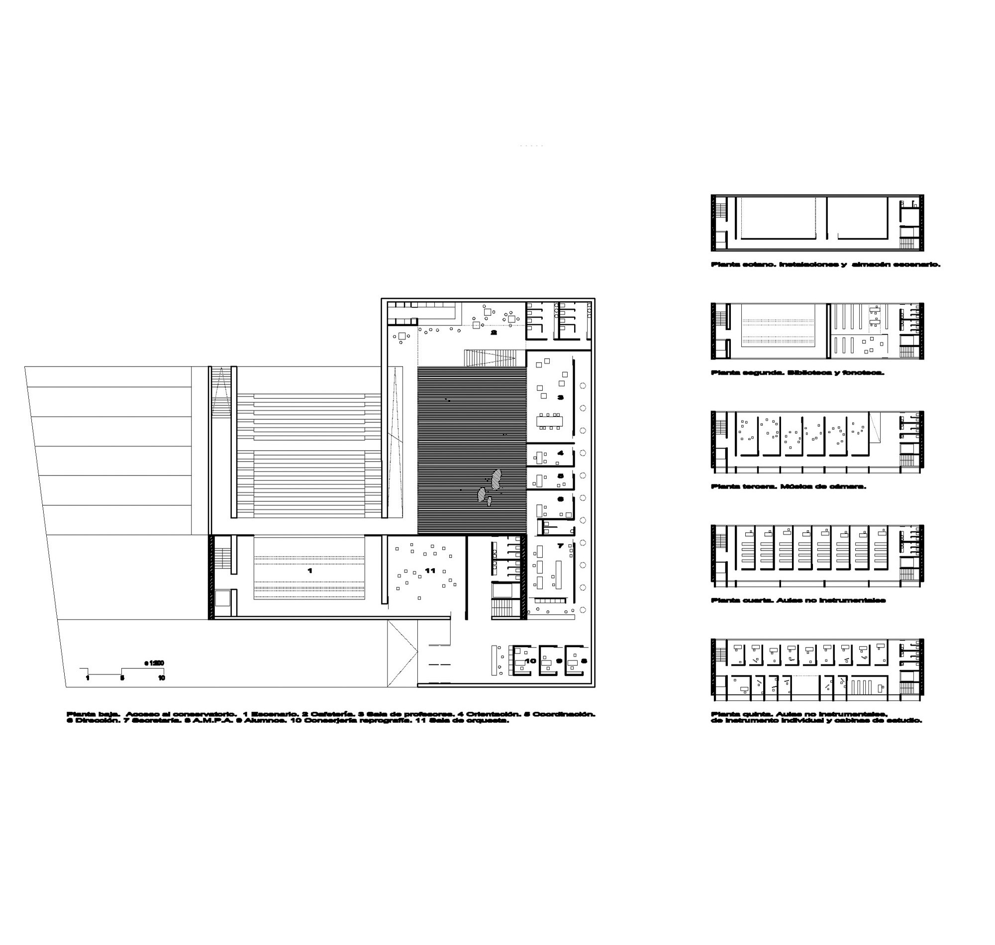
Del programa se han respetado estrictamente los usos planteados por las bases y se ha establecido como una unidad atomizada en partes, de manera que puedan ser uno y tres simultáneamente: Administración, Docencia y Auditorio.
Los accesos atienden a la misma jerarquización: El acceso principal del Conservatorio se da desde la calle Cronista Salcedo y el acceso al Auditorio se realiza desde la plataforma que se orienta hacia el Vial Sur.
El volumen del conjunto se refuerza con un edificio-pantalla de escala monumental. La pantalla entendida a modo de condensador de los usos docentes: un gran acordeón o un gran órgano, en definitiva una transposición semántica. Se trata de que la actividad se represente a si misma según se está realizando, por este motivo las pantallas juegan al valor de la transparencia como renovada acepción del concepto de carácter.
Ante un entorno diverso, en el que coexiste las vías rápidas de circulación, lo residencial intensivo, dotaciones de gran escala y extensas zonas de estacionamiento, proponemos la implantación de un edificio múltiple en su atribución de usos, de un reconocimiento no convencional, sino versátil a la vez que consistente en su manera de significarse, la polisemia frente a la indiferencia. En este sentido se incorporan tipografías concretas de letras CM con capacidad de ser vistas a corta y larga distancia simultáneamente.
| Denominación: | CONCURSO de Proyecto Básico y de Ejecución, de estudio de SS de Conservatorio elemental y profesional de Música. |
| Lugar: | Córdoba |
| Fechas: | 2004 |
| Categoría: | concurso, edificios Públicos |
| Superficie: | 4.048 m² |
| Presupuesto: | 2.600.000 € |
| Propiedad: | Ayuntamiento de Córdoba |
| Autores: | Odimasp | Alberto Grijalba y Julio Grijalba |
| Colaboradores: | Nils Kop (arquitecto), Adamas (Instalaciones), Alberto Grijalba ( Arquitecto Técnico), Ignacio Sánchez (estudio acústico) |















