– Unidades mínimas entre patios y recintos –

El planteamiento del edificio se centró en el estudio detallado del programa, en atender las necesidades de quien iban a ser los usuarios con una especial tenacidad. Pero el proyecto siempre se fue elaborando bajo el convencimiento de que la función no es un obstáculo a salvar, sino que establece líneas de investigación formal; mecanismos de expresión que deben ser descubiertos y aplicados cuidadosamente respetando la composición lógica de las partes y su orientación; sistemas evidentes de orden interno que se traducirían en cada proyecto, y en éste en concreto, en la en las características de los espacios, en la utilización de los materiales y en la imagen final de la propuesta.
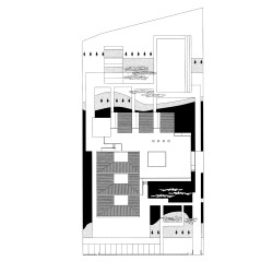
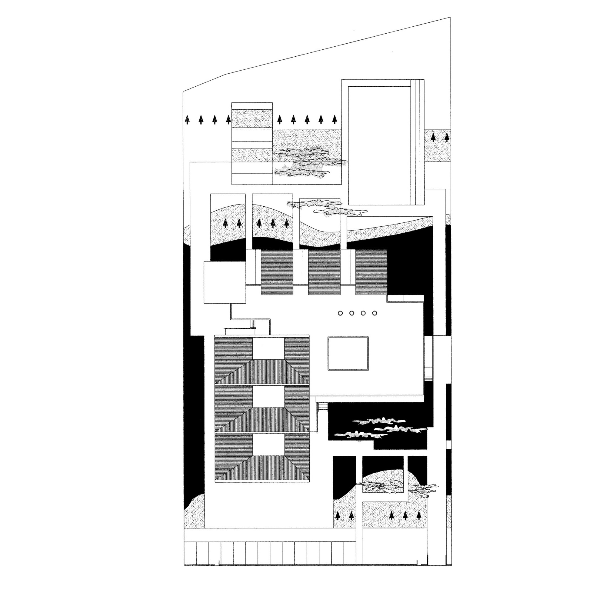
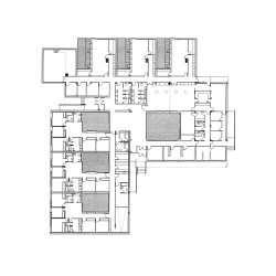
Con estas valoraciones, el edificio se desarrolló en una sola planta con el objetivo de favorecer la accesibilidad a todos los espacios. Se consideró la orientación del solar y la adecuada iluminación y ventilación de las dependencias según el uso al que fueran destinadas. También el diseño, dimensionamiento y disposición de los recintos permite una cierta flexibilidad de uso en periodos en los que no esté completo el número de plazas, así como futuras ampliaciones en el ala de la residencia y aulas.
Todas las necesidades que se plantearon en el momento del encargo se agruparon en tres zonas principales de uso. La primera zona se extiende longitudinalmente en el lado Sureste de la parcela y contiene la residencia. Esta se organiza mediante tres módulos idénticos que están preparados para contener grupos separados de nueve niños o niñas. Cada módulo se forma en torno a un patio que da luz a un ámbito de control y estancia del grupo. Desde este recinto común se accede a cinco dormitorios todos distintos, dimensionados para acoger a minusválidos y uno de ellos, incluso, insonorizado. Existen baños individuales y comunes, con el objeto de controlar las actividades de los niños. Cada módulo se distribuye así, casi como un núcleo doméstico.
La segunda zona del edificio, ocupada por los talleres y los espacios dedicados a actividades docentes, cierra la parte Suroeste, de modo que es la de mejor iluminación, pero también es la más calurosa en verano. Para matizar las condiciones climáticas se han intercalado patios entre los bloques de aulas, con lo que se han creado espacios umbríos desde los que se puede observar el exterior. Las aulas están coloreadas en tres tonos para ayudar a la orientación de los niños, y disponen de almacenes y una zona previa en la que se instalan las taquillas. La zona de talleres se completa con una sala de usos múltiples que sirve de gimnasio o para recreo en invierno, servicios y una serie de despachos.
Entre la residencia y los talleres se encuentra la zona de usos comunes para cuya ordenación se han estudiado especialmente los accesos a los distintos núcleos de actividad del centro. Se ha concedido especial importancia a la diferenciación de los recorridos y a la necesidad de separar el ala de servicios con una entrada independiente para material almacenable. La zona común consta así de una serie de recintos cercanos a la entrada principal con sala de visitas y administración, servicios y recepción. La situación de un patio central ayuda a la articulación de los espacios y circulaciones así como a la iluminación del comedor, que por su situación se entiende como el ámbito en el que convergen obligatoriamente los distintos programas de edificio.
| Denominación: | PROYECTO de Residencia y Centro de Día para autistas. 1º Fase 1997, 2ª Fase 2006 |
| Lugar: | Valladolid |
| Fechas: | 1997 1º Fase, 2006 2ª Fase |
| Categoría: | concurso, edificios Públicos |
| Superficie: | 1ª Fase 1.000 m², 2ª Fase 1.115 m² |
| Convocante: | Asociación de Padres de Autistas y psicóticos de Valladolid |
| Autores: | Alberto Grijalba & Paloma Gil. |
| Colaboradores: | Sara Delgado (Arquitecto). Alberto Rivas, Javier Arias, Ana Freitas y Anne-Claire Poirier (estudiantes de arquitectura). Alberto Grijalba, Pedro Rincón Francisco Hernández (Arquitectos Técnicos) |
Reconocimientos:
- FINALISTA. IV PREMIO DE ARQUITECTURA DE CASTILLA Y LEÓN, COACYLE Y COAL. 2003



























