– un palacio con luz –

D. Francisco de Zúñiga y Velasco, tercer conde de Miranda del Castañar, sexto Señor de Peñaranda de Duero patrocina la ejecución del palacio comúnmente llamado como «Palacio de Avellaneda», en el primer tercio del siglo XVI. La distribución de autorías es diversa, no estando en la actualidad suficientemente documentada; sin embargo parece claro que en la escuela burgalesa creada alrededor de la figura de Francisco de Colonia, e incluso en él mismo, se encuentran los suficientes datos como para suponer que son los autores de la fábrica inicial del Palacio.
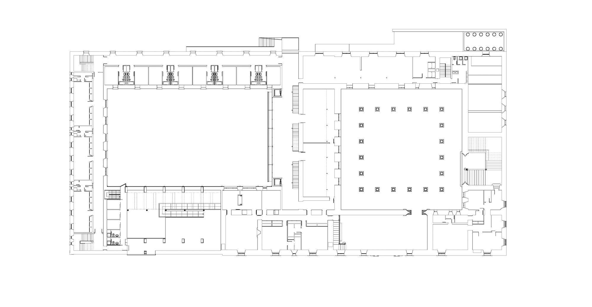
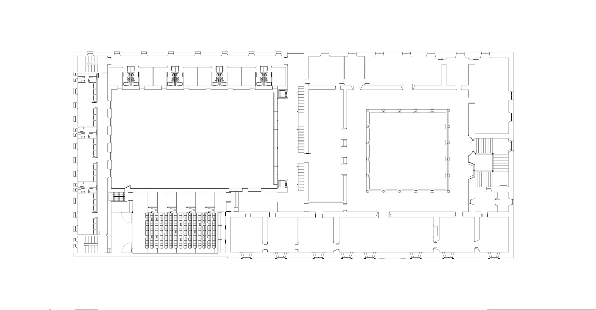
La tipología general del edificio corresponde al palacio con patio central, de carácter marcadamente cuadrado, zaguán y escalera. En la fachada nos encontramos ante una composición vernacular, con una clara tendencia a la cuadrabilidad como diría Chueca, pero presidida por el guiño que supone la reutilización de fragmentos de la cercana ciudad de Clunia, sin duda sugerentes y que denotan una actitud cultural precisa en sus autores.
Vemos pues en todo el conjunto una clara actitud ecléctica, capaz de armonizar bajo un manto clasicista toda la enseñanza mozárabe e incluso gótica que está presente no sólo en los planteamientos iniciales de la composición, sino también en la profusa ornamentación de ciertas piezas del palacio.
LA PRIMERA INTERVENCIÓN
La primera intervención conocida, tras la declaración de Monumento Nacional el 11 de Agosto de 1.923, se debe al arquitecto Anselmo Arenillas que en 1.949 redacta un proyecto para establecer una escuela de mandos de la Sección Femenina de F.E. de las Jons. El proyecto adosa un edificio en forma de «u» enrasado en fachada y altura.
LA SEGUNDA INTERVENCIÓN
La segunda intervención se ejecuta a través de la Dirección General de Bellas Artes y con posterioridad a la declaración de Conjunto Histórico al pueblo de Peñaranda de Duero el día 25 de abril de 1.974.
Las obras se reducen al saneo general de cubiertas del edificio, sustituyendo en su totalidad las cubiertas precedentes de madera, tanto del palacio inicial como del añadido de Arenillas por otras de complejo diseño de acero
INTERVENCIONES POSTERIORES
A partir de mediados de los años 80, el Palacio pasa a ser propiedad de la Junta de Castilla y León, y es a través de la Consejería de Educación y Cultura desde la que se coordinan un total de 4 Fases de proyectos, de los que nos hacemos cargo.
Reordenamiento de usos
El uso a que se destina el conjunto edificado es el de una residencia con capacidad para albergar en su seno todo tipo de actividades culturales, tales como cursos, seminarios, congresos, a la vez de salas de exposiciones eventuales y permanentes, puesto que en su origen, tras la ampliación de Arenillas, el conjunto estuvo destinado a centro-residencia de formación de la Sección Femenina. La estructura podrá ser mantenida en sus líneas generales, tan sólo será necesario racionalizar las distribuciones impropias de un edificio histórico de carácter público que la anterior intervención consolidó, y adaptar todo ello a las nuevas necesidades funcionales, higiénicas y técnicas.
A.- Liberalización de todas las zonas nobles, entendiendo por éstas las pertenecientes al palacio del siglo XVI, de todo uso no representativo y de carácter comunitario.
B.- Potenciación del «piano nobile» como planta destinada a los salones históricos representativos y con una fuerte carga museística, liberándola de usos destinados a servicios generales, incluido el comedor.
C.- Definición precisa de las dos alas de residencia, destinadas a habitación, en la búsqueda de incluir en el añadido/ampliación de Arenillas todos los usos básicos originados por la residencia.
D.- Fijar como contenedor de los dos espacios de gran crujía (salón de actos y sala de usos múltiples) el destinado anteriormente a teatro y gimnasio, para ser definido como pieza común entre el uso palaciego y de residencia propiamente dicho.
E.- Creación de una galería de comunicación general de la residencia, que se apoye en el patio, y absorba la difícil misión de rematar la crujía frontera entre el palacio y la residencia.
El patio del palacio
En el patio original del palacio se han acometido un conjunto de intervenciones que se pueden agrupar en dos: la restauración de los artesonados del patio, así como el de la escalera principal del conjunto, y la restauración del propio patio central del palacio.
El nuevo acceso a la residencia y la galería
Una de las patologías más acusada en todo el conjunto era sin duda la planteada en la crujía común a los dos patios, el del primitivo palacio y el de la residencia.
La solución adoptada se basa fundamentalmente en la creación de una galería dominada por la escalera de la residencia; la escalera tiene una pretensión de claro espacio totalizante en la galería, con claras referencias a la «modernidad», y que pretende ser el gran espacio de comunicación de las piezas representativas fundamentales de la residencia.
El acceso creado en la residencia desde el jardín intramuros, vincula su vestíbulo al entendimiento de la totalidad de la crujía de la galería, entendida como nueva intervención y con un claro carácter autónomo, es por ello por lo que se hace presente en la fachada al jardín como pieza delimitadora y a la vez coordinadora de la fachada del palacio y la ampliación de la residencia.
La sala de usos múltiples y el salón de actos
La residencia, al estar desarrollada en una geometría tan definida alrededor del patio y conformada en forma de «u», permite la dedicación de dos alas al programa de habitación y la tercera, de mayor crujía, al contenedor del teatro y la sala de usos múltiples.
La Sala de Usos Múltiples
Situada en el antiguo gimnasio, el tipo de sala propuesto, es abierto, polivalente y claramente volcado al patio, entendido éste como su expansión natural. El diseño interior gira en torno a la continuidad del corredor del palacio.
El Salón de Actos
El actual salón de actos original de Arenillas podría definirse como perteneciente a una tipología teatral, constatable en toda la distribución y composición de sus partes y la relación entre las mismas producía innumerables patologías. Se propone por ello una tipología de salón de actos con vestíbulo lateral sobre el patio de la residencia que dialogará mejor con la totalidad de la composición, y que tiene una directa relación con la solución adoptada para la sala de usos múltiples.
El interior del salón de actos esta definido fundamentalmente por el carácter de la tribuna lateral sobre un pórtico, que se corresponde con el vestíbulo general, dotará de carácter y escala al interior, a la manera aspluniana en el cine Skandia, bajo un techo que rememora la Las intervenciones en la imagen del conjunto
Todo el proceso de intervención en un edifico histórico con un claro concepto de «metamorfosis», se vincula a lo que se ha dado en llamar la «analogía formal», que busca la intervención más adecuada como solución a las sucesivas propuestas temporales realizadas sobre el mismo conjunto.
En este caso el acercamiento a la imagen del conjunto se realiza en base al máximo respeto del carácter unitario y de arquitectura sin autor que la obra de Arenillas esboza, de esta manera se han unificado las cumbreras de la totalidad e la cubierta, y se modifica la cubrición del cuerpo del Salón de Actos, con la realización de un cuerpo continuo
| Denominación: | Restauración palacio de Avellaneda |
| Lugar: | Peñaranda de Duero, Burgos |
| Fechas: | 1986-2006 |
| Categoría: | proyecto, restauración |
| Superficie: | 4.048m² |
| Autores: | Julio Grijalba, Eduardo Carazo, Víctor Ruiz |
| Colaboradores: | Yoana Cebrecos y Rebeca Merino (arquitectos), Oscar Fernández (instalaciones). Alberto Grijalba e Ignacio Maté (Arquitectos Técnicos) Carlos Ruiz |
| Fotografías: | Azurmendi, L. y Ayala, J |























