– Hormigón tramado entre patios –

Se propone un edificio con una volumetría variada y aparentemente compacta, polarizado hacia el jardín existente en la orientación norte. Esta decisión se toma por el modo en que el edificio se presenta ante la ciudad en una zona que es de viviendas de baja densidad.
Dado que el edificio no puede ser representativo por sus dimensiones en superficie o en altura, se propone un tratamiento elaborado de las superficies de fachada mediante la sucesión de paños de hormigón prefabricado de dos tipos, unos opacos u otros calados a modo de reja, que se adaptan a las condiciones de los espacios que se distribuyen en el perímetro del edificio recordando las celosías de inspiración árabe. Para su diseño definitivo se utilizan los anagramas conocidos tanto del Instituto Nacional de la Seguridad Social como de la Tesorería General de la Seguridad Social.
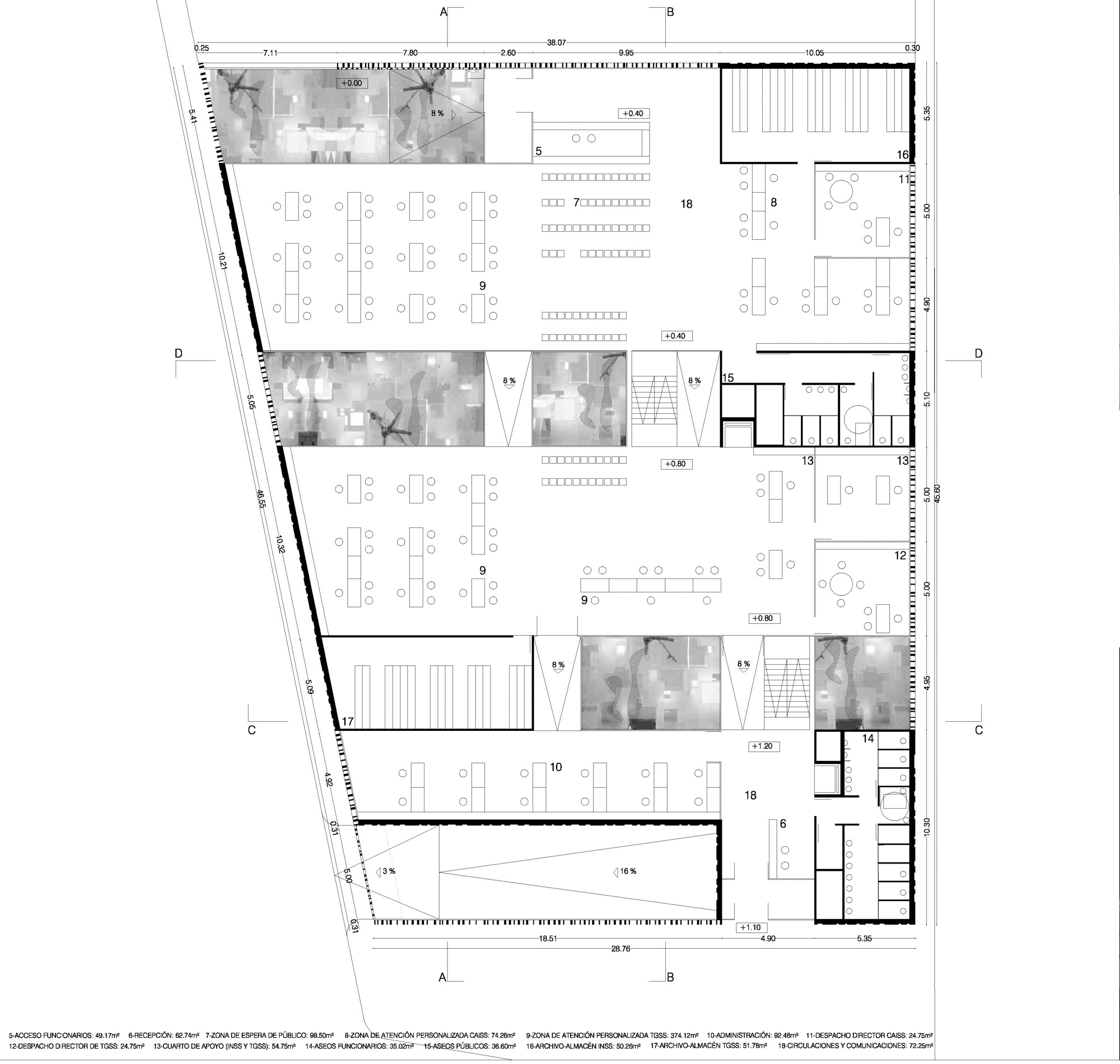
En el volumen compacto del edificio se alterna un conjunto de patios de distinta profundidad y dimensión que optimizan la iluminación y ventilación natural, al mismo tiempo que ayudan a distribuir los usos de los distintos espacios, claro recuerdo de los sistemas de patios cordobeses.
El diseño del edificio como totalidad se beneficia de las condiciones bioclimáticas con las orientaciones más favorables al soleamiento y las protecciones adecuadas para cada situación, y el aprovechamiento de las energías renovables, La edificación ha sido orientada para capturar las ventajas del clima y su zonificación; trata de optimizar el consumo energético durante todo el año. Asimismo, se han elegido materiales naturales no tóxicos para la salud, duraderos y reciclables y los sistemas constructivos respetan el medioambiente, aprovechando los recursos naturales con responsabilidad ecológica y adaptándolos a las nuevas necesidades.
Dentro del proceso de elaboración del proyecto, se propone realizar una valoración para la obtención del “sello” EN VERDE, mediante los criterios especificados mediante la herramienta VERDE-HU2 v 1.0 .
| Denominación: | Concurso de Consultoría y asistencia para la redacción de proyecto básico y de ejecución de las obras de construcción de un edificio destinado a la oficina de la Seguridad Social Lucena. |
| Lugar: | Lucena, Córdoba. |
| Fechas: | 2008 |
| Categoría: | Concurso, edificio publico |
| Superficie: | 3.709 m² |
| Propiedad: | Ministerio de Trabajo y Asuntos Sociales. Secretaria de Estado de la Seguridad Social |
| Autores: | odimasp | Julio Grijalba, Alberto Grijalba |
| Colaboradores: | Yoana Cebrecos (arquitecto). Sergio Martínez y Alberto Rivas (estudiante de arquitectura), Adamas (instalaciones), Jorge Carcedo (estructuras). |















